Eladó családi ház Balatonalmádi 139 500 000 Ft

Leírás

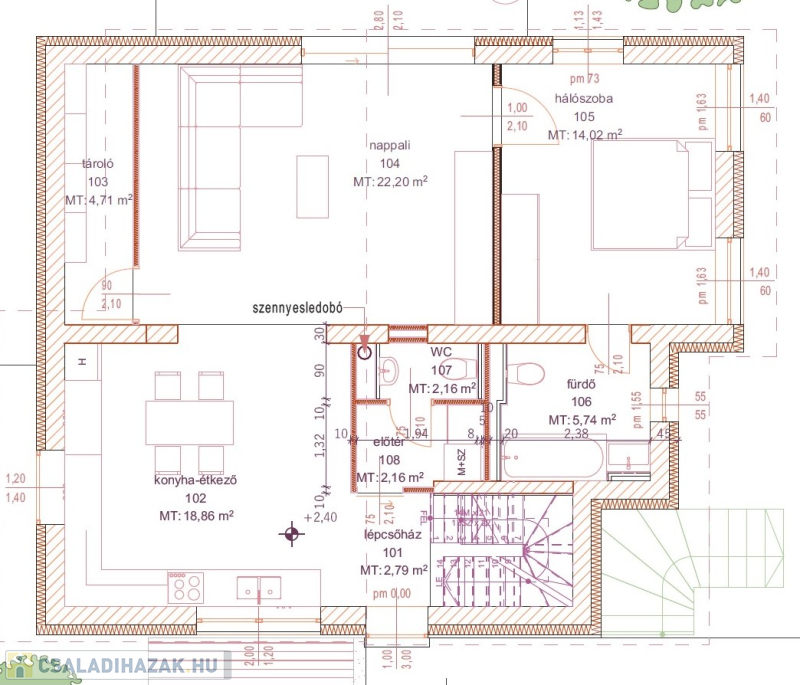
Balatonalmádi csendes utcájában, 2 km-re a Wesselényi strandtól kiváló minőségben, hegyoldalba épített, 245 m2-es, 3 szintes, nappali + 5 szobás, családi ház, sok extrával, dél-nyugati tájolású, hegyre néző 48 m2-es terasszal, boros pincével, wellness résszel, 2 állásos, fedett gépkocsibeállóval, mely be is építhető, 777 m2-es összközműves telekkel, burkolás, szaniterek, belső ajtók nélkül 2024 nyár végi átadással eladó. Kulcsrakész állapot is kérhető. Kb. + 15 millió Ft.

Az alapokon, födémeken, falakon kívül minden kicserélésre került! Új alumínium, hőszigetelt homlokzati nyílászárók 3 rétegű üvegezéssel, elektromos alumínium redőnyökkel, szúnyoghálókkal. 14 KW-os levegő-víz hőszivattyú biztosítja a padlófűtést és meleg víz ellátást. Teljesen új gépészeti csövek, vezetékek. Riasztó. Új fedélszék, 15 cm. pir hab és 15 cm kőzetgyapot szigeteléssel, Terrán cseréppel, színterezett bádogozással. 15 cm. dryvit homlokzati hőszigetelés. Vakolt, glettelt, festett belső falak. Gipszbeton lépcső. A legfelső 2 szinten 1-1 db. 3,5 KW-os, inverteres hűtő-fűtő klíma is elhelyezésre kerül.

Bankfüggetlen, díjmentes hiteltanácsadással segítjük vásárlását. Hívjon bizalommal!

Családi ház részletei

Ár: 139 500 000 Ft
Méret: 245 négyzetméter
Azonosító: 11423454
Telek: 777 négyzetméter
Ingatlan állapota: Átlagos
Jelleg: családi ház
Építőanyag: Kérdezzen rá a hirdetőtől »
Szintek száma: 3 szint
Egész szobák: 6

Egyéb jellemzők

  • Csatorna
  • Garázs
  • Kábel TV
  • Melléképület
  • Parketta
  • Pince
  • Terasz

Így keressen családi házat négy egyszerű lépésben. Csupán 2 perc, kötelezettségek nélkül!

Szűkítse a családi házak
listáját
Válassza ki a megfelelő
családi házat
Írjon a hirdetőnek
Várjon a visszahívásra