Eladó családi ház Balatonalmádi 129 000 000 Ft

Leírás

Patak parti idill - ELADÓ BALATONALMÁDI CSALÁDI HÁZ

A CASANETWORK BALATONFÜREDI IRODA eladásra kínálja 2022. számú, kiváló adottságokkal rendelkező BALATONALMÁDI CSALÁDI HÁZÁT.

A BALATONALMÁDI CSALÁDI HÁZ jellemzői:

- Kiváló lokáció, félreeső, csendes utcában.

- Idilli, patak parti környezet.

- A kertben rengeteg fa, főként fiatal gyümölcsfák (szilva, alma, cseresznye, barack, stb) vannak. 

- A sok fának is köszönhetően megvan az az érzésünk, hogy egy liget közepén lakunk.

- A tulajdonosok amit lehet, igyekeznek maguknak megtermelni, saját konyhakertjükben.

- A kertben található továbbá egy ásott kút, amelyben bőségesen van víz.

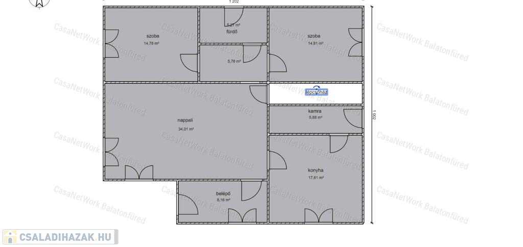
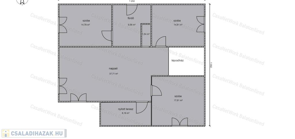
- A ház elosztása jó, nagy terek jellemzik, mind a földszintet, mind a tetőteret. 

- Szigetelt ház, elől 12cm, hátul 15 cm szigetelés került fel. 

- Az ablakok 3 éve lettek cserélve, 3 rétegű nyílászárók kerültek beépítésre.

- A ház alatt egy nagyméretű pince helyezkedik el.

- Ideális például nagy családnak, vagy akár több generációnak, köszönhetően a beépített tetőtérnek és a sok szobának.

Amennyiben a BALATONFÜREDI CASANETWORK IRODA által kínált, 2022 számú BALATONALMÁDI CSALÁDI HÁZ felkeltette érdeklődését, kérem hívjon a megadott telefonszámon.

Családi ház részletei

Ár: 129 000 000 Ft
Méret: 210 négyzetméter
Azonosító: 10938065
Irodai azonosító: 163802022
Telek: 960 négyzetméter
Ingatlan állapota: Felújított
Jelleg: családi ház
Építőanyag: Tégla
Fűtés jellege: Cirkó
Fűtés módja: Gáz
Komfort fokozat: Összkomfort
Egész szobák: 7

Így keressen családi házat négy egyszerű lépésben. Csupán 2 perc, kötelezettségek nélkül!

Szűkítse a családi házak
listáját
Válassza ki a megfelelő
családi házat
Írjon a hirdetőnek
Várjon a visszahívásra