Eladó családi ház Balatonakarattya 206 000 000 Ft

Leírás

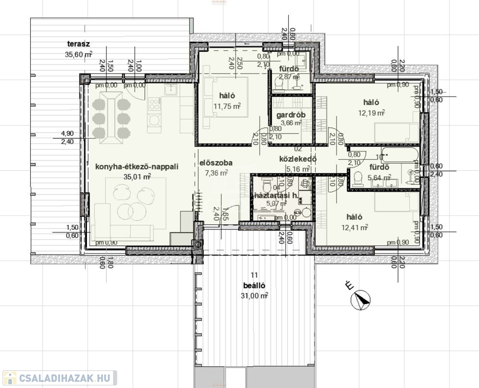
Balatonakarattyán eladásra kínálunk egy földszintes, 101 m2-es "okosház" tervezésű lakóházat 36 m2-es terasszal, 2026. év átadással!

Az ingatlan tulajdonságai:
- A modern stílusú épület amerikai konyhás nappali, 3 szoba, 2 fürdőszoba, közlekedő, gardrób, valamint háztartási-gépészet helyiségekből áll, melyhez autóbeálló és terasz kapcsolódik.
-A tágas terasz, 36 m2-es.

Az épület nemcsak állandó otthonnak, vagy nyaralónak alkalmas, de befektetésnek is remek lehetőség!

Ideális elhelyezkedés (vízpart közelsége, jó megközelíthetőség, családias környezet), ideális telekméret és kedvező ár.

A jelenleg kivitelezés előtt álló lakóház a szerkezetkész állapot elérése után már megvásárolható. Ebben az esetben a kivitelezés folytatása az új tulajdonos igényei, elképzelései figyelembevételével történne.

- A gépészet korszerűen lesz kivitelezve, okos-otthon technológiával.

Ezért is ajánlom befektetőknek, illetve családok részére, akik szeretik a Balatont!

Ne hagyja ki ezt a remek lehetőséget!

Amennyiben a veszprémi GDN Ingatlaniroda által kínált családi ház, vagy bármely, a kínálatunkban található ingatlan felkeltette érdeklődését, forduljon hozzám bizalommal!

Ingatlanirodánk díjmentes, banksemleges hitelügyintézéssel, illetve ügyvédi tanácsadással is áll Ügyfeleink rendelkezésére!

Családi ház részletei

Ár: 206 000 000 Ft
Méret: 101 négyzetméter
Azonosító: 11568111
Irodai azonosító: 387815
Cím: Árpád utca
Telek: 1466 négyzetméter
Ingatlan állapota: Kitűnő
Jelleg: családi ház
Építőanyag: Tégla
Fűtés jellege: Egyéb
Komfort fokozat: Luxus komfort
Kor: Új építésű
Szintek száma: Földszintes
Egész szobák: 4

Egyéb jellemzők

  • Csatorna
  • Garázs
  • Pince
  • Terasz

Térkép


Így keressen családi házat négy egyszerű lépésben. Csupán 2 perc, kötelezettségek nélkül!

Szűkítse a családi házak
listáját
Válassza ki a megfelelő
családi házat
Írjon a hirdetőnek
Várjon a visszahívásra