Eladó családi ház Baja 180 000 000 Ft

Leírás

Eladó amerikai stílusú ingatlan Baján!
✨ Csendes, nyugodt környéken, mégis mindenhez közel!

Jelenleg 70%-os készültségű, így még alakítható saját igény szerint!
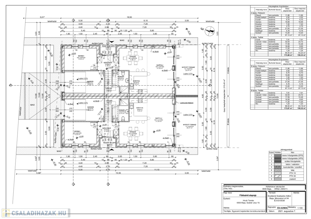
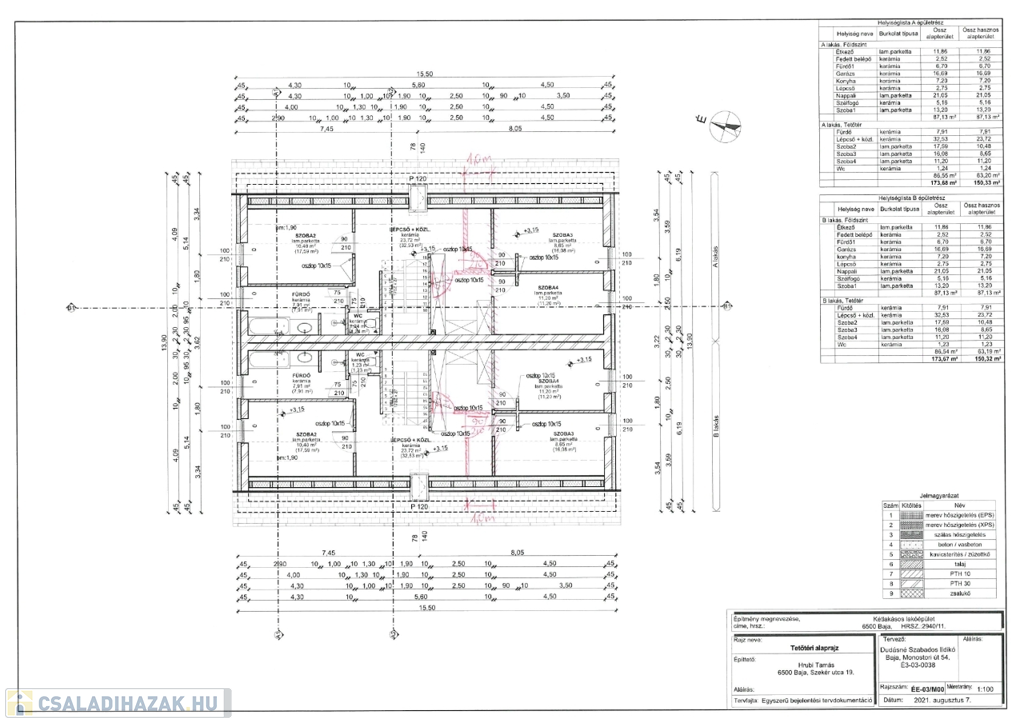
Az ingatlan két különálló, egyenként 150 m²-es lakást tartalmaz.
Mindkét lakáshoz terasz és saját udvarrész tartozik.


Ár: 600.000 Ft/m²
Egy lakás ára kb. 90.000.000 Ft

️ A lakások külön-külön is megvásárolhatóak – tökéletes két generáció részére vagy befektetésként!
‍‍‍ CSOK Pluszra alkalmas – fiatal családoknak ideális választás!

Családi ház részletei

Ár: 180 000 000 Ft
Méret: 300 négyzetméter
Azonosító: 11521585
Irodai azonosító: 381683
Cím: Bodorka utca
Telek: 820 négyzetméter
Ingatlan állapota: Épülő
Jelleg: ikerház
Építőanyag: Tégla
Fűtés jellege: Geotermikus
Fűtés módja: Hőszivattyú
Komfort fokozat: Összkomfort
Kor: Új építésű
Szintek száma: 1 szint
Egész szobák: 4

Egyéb jellemzők

  • Csatorna
  • Garázs
  • Pince
  • Terasz

Térkép


Így keressen családi házat négy egyszerű lépésben. Csupán 2 perc, kötelezettségek nélkül!

Szűkítse a családi házak
listáját
Válassza ki a megfelelő
családi házat
Írjon a hirdetőnek
Várjon a visszahívásra