Eladó családi ház Aszaló 9 660 000 Ft

Leírás

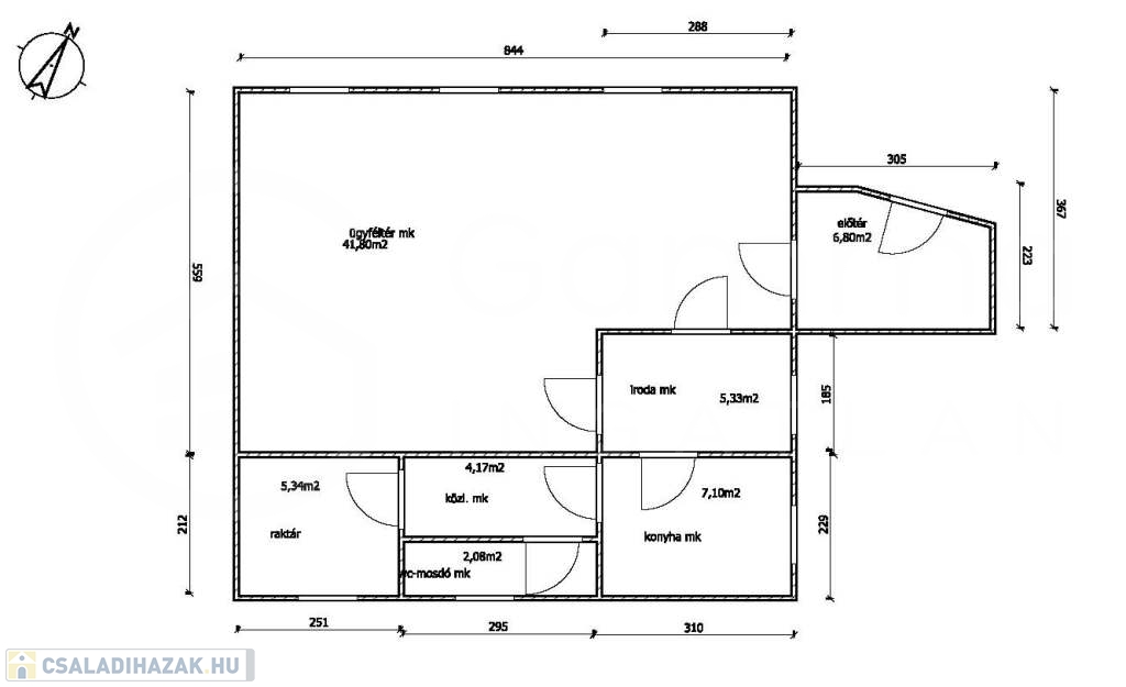
Miskolctól kb. 18 km-re, Aszalón, a Rákóczi Ferenc utcába eladó egy 72 m2-es, egykor takarékszövetkezetként működő, de egyéb módon is hasznosítható lakóház.
Irányár: 9.660.000, -Ft + áfa

Helyiség lista:
- előtér
- iroda
- ügyféltér
- konyha
- WC.-mosdó
- raktár
- közlekedő

Műszaki leírás:
A kínált ingatlan 1990-es években épült, földszint tagolódású, tégla falazatú, összetett tetős, bitumenes zsindely fedéses épület. Az épület födéme vasbeton gerendás béléstestekkel, külső homlokzata kőporos vakolattal ellátott. Külső nyílászárói faszerkezetű ablakok, hőszigetelt üvegezéssel, jó minőségben. Fűtését és melegvíz-ellátását kombi gázkazán biztosítja radiátor hőleadókkal. A helyiségek burkolata mázas kerámia, jó műszaki állapotban. Az épületben klíma működik.

Környezet:
Az ingatlan a település központjában, az általános iskola mellett található, családi házak között.

Közlekedés:
A település és az ingatlan autóval és távolsági busszal pormentes, aszfaltozott úton közelíthető meg.

Családi ház részletei

Ár: 9 660 000 Ft+ÁFA
Méret: 72 négyzetméter
Azonosító: 11359293
Irodai azonosító: 109658
Cím: Aszaló
Ingatlan állapota:
Jelleg: családi ház
Építőanyag: Kérdezzen rá a hirdetőtől »
Fűtés jellege: Cirkó
Egész szobák: 1
Fél szobák: 1

Egyéb jellemzők

  • Terasz

Így keressen családi házat négy egyszerű lépésben. Csupán 2 perc, kötelezettségek nélkül!

Szűkítse a családi házak
listáját
Válassza ki a megfelelő
családi házat
Írjon a hirdetőnek
Várjon a visszahívásra