Eladó családi ház Ásványráró 64 990 000 Ft

Leírás


Győr-Moson-Sopron Vármegye, Ásványráró új építésű 5 szobás ikerház eladó.



A TELEPÜLÉSRŐL:



Ásványráró a Szigetköz középső részén, a Duna jobb partján fekszik, Győrtől 20, Mosonmagyaróvártól 22 kilométerre. Természeti adottságai kiemelkedők, illetve több látnivalója is van, templomok, műemlékek, emellett pedig minden fontos intézmény: iskola, óvoda, orvosi rendelő, gyógyszertár és több vegyesbolt is megtalálható.



AZ ÉPÜLET:



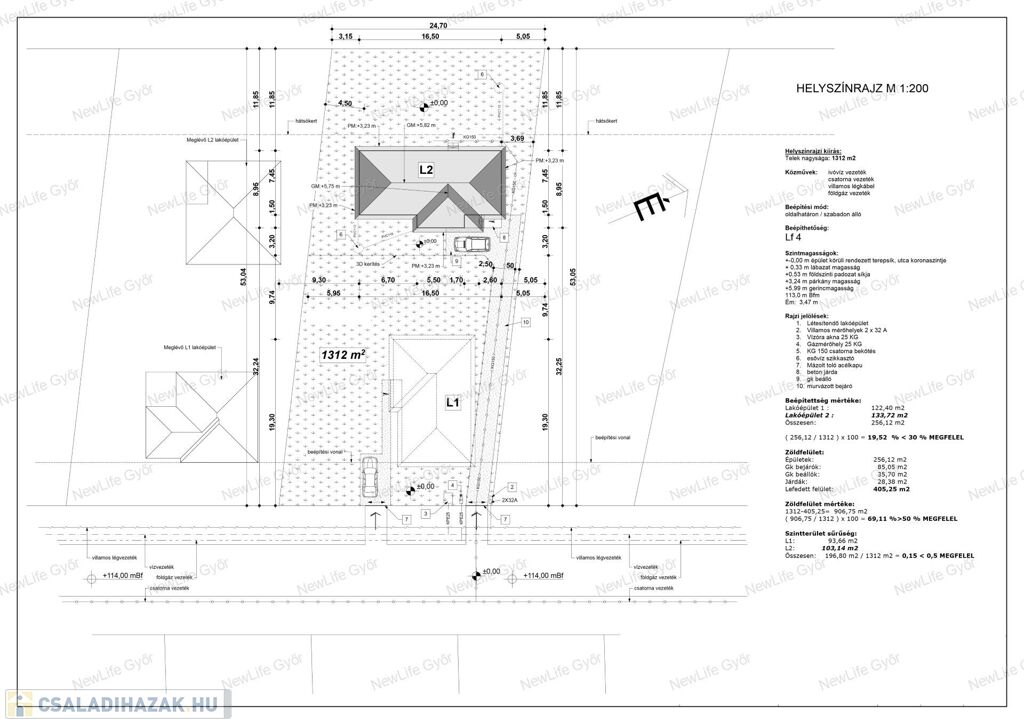
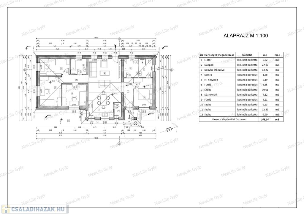
A 5 szobás (L2), 103 m2-es családi ház 682 m2-es telekhányadon (összesen 1312 m2 telken) másodmagával épül és fűtéskész állapotban kerül átadásra várhatóan: 2026 első felében. Természetesen, kulcsrakész befejezésre is van lehetőség.

Két ikerház egymás mögött helyezkedik el, külön bejárattal, kb 25 m-es utcafronttal rendelkeznek, magánszférát megőrizve nincs átjárás a másik udvarán. A helyszínrajzon jól látható, hogy az L2 (hátsó) épület az L1 (első) épület mögötti úton tudja megközelíteni saját udvarát, így teljesen különálló családi házként funkcionálnak. Nincs közös fal, nincs közös garázs vagy tároló. A két ház egymástól kb. 20 méter távolságban épülnek.



Elosztása: Előtér, közlekedő, amerikai konyhás nappali étkezővel, kamra, három szoba, fürdőszoba, külön WC, háztartási helyiség.



MŰSZAKI TARTALOM:



Teherhordó falazat 30-as tégla falazattal készülnek, 15 cm-es hőszigetelő rendszerrel. Fafödém, 30-cm üveggyapot hőszigeteléssel. Terrán fekete tetőcserép, antracit bádogos szerkezet és esőcsatorna.

Padló hőszigetelés 12 cm-es lépésálló.

Homlokzati fehér műanyag nyílászárók hő- és hangszigetelt 5 légkamrás, 3 rtg üvegezéssel, műanyag 5 ponton záródó hőszigetelt fehér bejárati ajtó.

A fűtésről és melegvízellátásról kondenzációs kombi gázkazán gondoskodik (Saunier Duval), hőleadás padlófűtésen keresztül történik.

Fűtése várhatóan hőszivattyús lesz, ez további 2 MFt áremelést eredményezhet.





Az ár a telekhányadot már tartalmazza. Kisebb mértékű változtatás az építés előrehaladottságától függően lehetséges, műszaki tartalom emelhető felár ellenében.

(akár napelem is kérhető)

A családi házra CSOK Plusz, kedvezményes lakáshitel, illetékmentesség is igényelhető/felvehető, így az összes támogatás kihasználható rá, ami jelenleg elérhető.





KI ÉPÍTI?

A vállalkozó és összeszokott csapata, számos referenciával rendelkeznek, lassan 20 éve építenek, befejeznek, felújítanak.

Ez alatt az idő alatt kialakult egy rutin, a házak terveit folyamatosan alakítják, mindig a kor legfontosabb követelményeinek és trendjeinek figyelembe vételével. Tudják, amit vállalnak azt precízen, pontosan megvalósítják, határidők, igények betartásával.





Ne maradjon le róla!



A jelen hirdetésben rögzített, az ingatlannal kapcsolatos adatok, információk a Megbízó tájékoztatása alapján kerültek meghatározásra.



Irodánkban az alábbiakkal tudjuk segíteni a gyors és megbízható ügyintézést:

-bankfüggetlen hitelügyintézés, CSOK Plusz

-energetikai tanúsítvány

-értékbecslés

-ügyvédi szerződések, jogi tanácsadás

Családi ház részletei

Ár: 64 990 000 Ft
Méret: 103 négyzetméter
Azonosító: 11567719
Irodai azonosító: 718800629
Telek: 682 négyzetméter
Ingatlan állapota: Kitűnő
Jelleg: családi ház
Építőanyag: Tégla
Komfort fokozat: Dupla komfort
Kor: Új építésű
Egész szobák: 5

Így keressen családi házat négy egyszerű lépésben. Csupán 2 perc, kötelezettségek nélkül!

Szűkítse a családi házak
listáját
Válassza ki a megfelelő
családi házat
Írjon a hirdetőnek
Várjon a visszahívásra