Eladó családi ház Ásványráró 64 990 000 Ft

Leírás


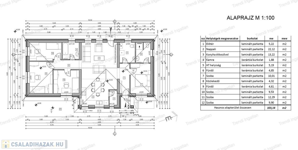
Ásványráró csendes utcájában nappali + 4 szobás, 103,14 nm-es ikerház 682 nm-es telekrésszel eladó. A két ház külön megközelíthető, nincs közös fal.

A kiváló elosztású házban amerikai konyhás nappali, 4 szoba, 2 fürdőszoba, háztartási helyiség, kamra, közlekedő, előtér található. A ház belső elrendezése készültségi fokhoz mérten még változtatható.

A ház 30-as falazóelemből, 15 cm-es homlokzati szigeteléssel, 3 rétegű műanyag nyílászárókkal kerül kivitelezésre. Az ingatlan fűtését és melegvíz ellátását kondenzációs kazán biztosítja padlófűtéssel. Felár ellenében hőszivattyús fűtés, napelemrendszer kiépítése, kerti csap, klíma- és riasztó előkészítés, terasz, térkövezés kérhető.

Fűtéskész átadás várható ideje: 2026 tavasz

Az ingatlan fűtéskész ára: 64.990.000 Ft. 

Kulcsrakész befejezés kérhető. Kulcsrakészár: 74.990.000 Ft.

Az ár tartalmazza a telek árát is.

Bővebb információkért forduljon hozzám bizalommal.

Hétköznap és hétvégén is várom hívását!

Díjmentes, bankfüggetlen hitelügyintézéssel állunk rendelkezésére.

A hirdetésben feltüntetett képek illusztrációk.

Családi ház részletei

Ár: 64 990 000 Ft
Méret: 103 négyzetméter
Azonosító: 11563793
Irodai azonosító: 196400772
Telek: 682 négyzetméter
Ingatlan állapota: Kitűnő
Jelleg: ikerház
Építőanyag: Tégla
Komfort fokozat: Dupla komfort
Kor: Új építésű
Egész szobák: 5

Így keressen családi házat négy egyszerű lépésben. Csupán 2 perc, kötelezettségek nélkül!

Szűkítse a családi házak
listáját
Válassza ki a megfelelő
családi házat
Írjon a hirdetőnek
Várjon a visszahívásra