Eladó családi ház Áporka 79 500 000 Ft

Leírás

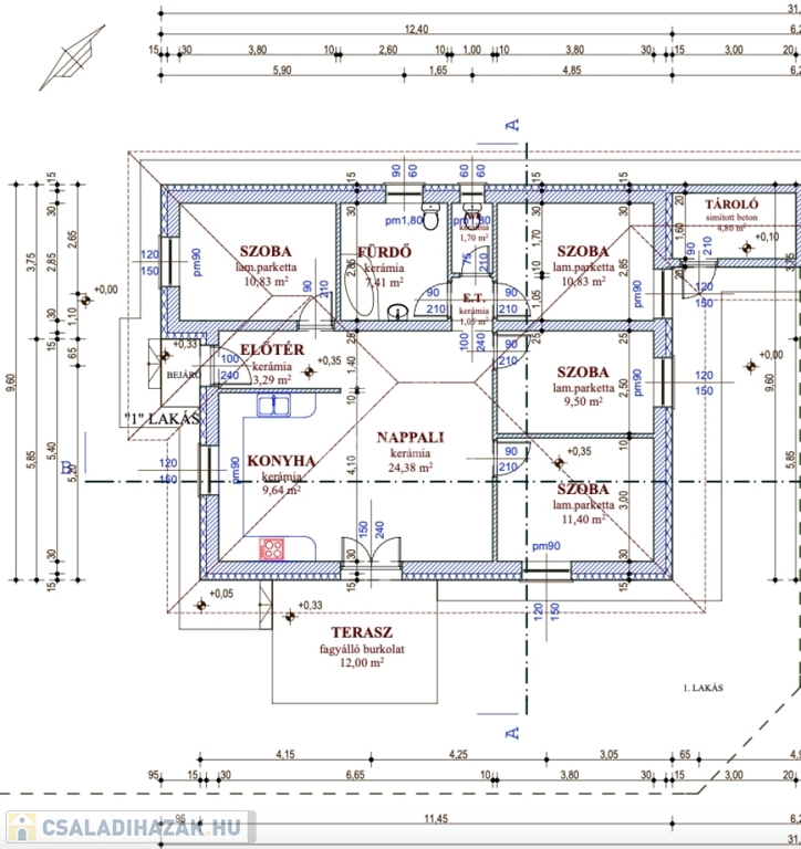
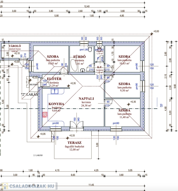
ÁPORKÁN, CSENDES KERTVÁROSI környezetében, nettó 95 m2-es, nappali + 4 szobás, AUTÓBEÁLLÓVAL, TÁROLÓVAL ÉRINTKEZŐ, MODERN, EGYSZINTES, ÚJÉPÍTÉSŰ, IKERHÁZAT kínálunk eladásra!

HELYISÉGEI:
-Előtér: 3.29m2
-Közlekedő: 1.05m2
-Szoba: 10.83m2
-Szoba: 9.50m2
-Szoba: 11.40m2
-Fürdőszoba: 7.41m2
-WC: 1,7m2
-Szoba: 10.83m2
-Nappali: 24.38m2
-Konyha: 9.64m2
-Tároló: 4.80m2
-Terasz: 12m2

Az ingatlanhoz saját, kizárólagos használatú, lekerített TELEKRÉSZEK tartoznak.
Autóbeálló tartozik az ingatlanhoz, a kialakítását a vételár tartalmazza.

Külső falazat: Ytong 30 cm-es, 12 cm-es Dryvit hőszigeteléssel, 20 cm-es cellulóz alapú fújt födém szigeteléssel.

Műanyag nyílászárok: 5 légkamrás fokozott hőszigetelésű mindkét oldalt színezett barna (sötét dió) műanyagból, thermoplan tripla 0,7k üvegezéssel.
Bejárati ajtó szabványnak megfelelő 5 ponton záródó biztonsági ajtó, mindkét oldalt sötét dió színben.

A fűtést HŐSZIVATTYÚ biztosítja, padlófűtéssel (igény szerint radiátorokkal is).

Nagyon IGÉNYES KIVITELEZÉS, minőségi anyagok felhasználásával épül ( részletes Műszaki leírással és további anyagokkal rendelkezem.)

Külön mérőórák, szeparált telekrészek, különböző utcai bejáratok!
Mindkét házhoz felszíni autóbeálló hely biztosított.

MÉRETEK, TÁJOLÁS, ELRENDEZÉS, AZ ALAPRAJZOKON.
( Belső átalakítás-kialakítás a Vevő igényei alapján megoldható )

TERVEZETT ÁTADÁS: 2026. második negyedév!
Megtekinthető elkészült REFERENCIA munkák.

Az ikerház CSOK PLUSZ, FALUSI CSOK valamint 3% START hitelre és egyéb kedvező hitelekre alkalmas.
(Szükség esetén ingyenes hitelügyintézéssel)

Az ingatlan tehermentes, könnyen megközelíthető!

Áporka egy Pest megyei község a Csepeli-síkon, Budapesttől délre, az 51-es főút közelében, Kiskunlacháza szomszédságában. A Ráckevei-Soroksári Duna-ág (RSD) partján fekvő település kedvelt horgász- és üdülőhely, amely könnyen elérhető a fővárosból.
A nyugodt, családias község kiváló lehetőségeket kínál a vízi turizmus és a pihenés kedvelőinek.
Főbb jellemzők:
Fekvés: Budapesttől kb. 30-40 perc autóútra, a Ráckevei-Soroksári Duna bal partján.

Áporka ideális célpont azoknak, akik a főváros közelségében keresnek vízparti kikapcsolódást.

Az ingatlan megtekintése előre egyeztetett időpontban lehetséges, akár hétvégén is.
Bővebb információkkal kapcsolatban várom jelentkezését, keressen bizalommal a hét minden napján!

Családi ház részletei

Ár: 79 500 000 Ft
Méret: 95 négyzetméter
Azonosító: 11599614
Irodai azonosító: 392643
Cím: EGYSZINTES, ÚJÉPÍTÉSŰ IKERHÁZ!
Telek: 440 négyzetméter
Ingatlan állapota: Kitűnő
Jelleg: ikerház
Építőanyag: Kérdezzen rá a hirdetőtől »
Fűtés jellege: Geotermikus
Fűtés módja: Hőszivattyú
Komfort fokozat: Összkomfort
Kor: Új építésű
Szintek száma: Földszintes
Egész szobák: 5

Egyéb jellemzők

  • Csatorna
  • Garázs
  • Pince
  • Terasz

Térkép


Így keressen családi házat négy egyszerű lépésben. Csupán 2 perc, kötelezettségek nélkül!

Szűkítse a családi házak
listáját
Válassza ki a megfelelő
családi házat
Írjon a hirdetőnek
Várjon a visszahívásra