Eladó családi ház Alsószuha 12 900 000 Ft

Leírás

Alsószuhán 95m2-es szerkezetkész családi ház, 720m2-es telken Eladó!

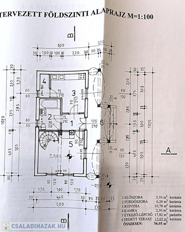
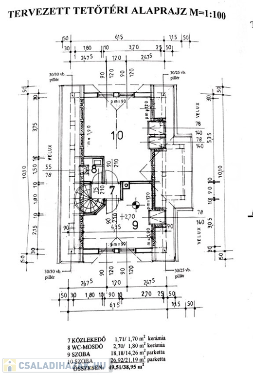
A tervezett lakóépület oldalhatáron álló földszint + tetőteres, útra merőleges gerincű csonka kontyolt nyeregtetővel.
A lakás nettó alapterülete: 56,05+38,95 m2 (fölszint+tetőtér)
A tervrajzok és az engedélyek rendelkezésre állnak.
A telken az ipari áram kialakításra került.

Megtekintés előre egyeztetett időpontban lehetséges.

Családi ház részletei

Ár: 12 900 000 Ft
Méret: 95 négyzetméter
Azonosító: 11512752
Irodai azonosító: 118163
Cím: Alsószuha
Telek: 720 négyzetméter
Ingatlan állapota: Szerkezetkész
Jelleg: családi ház
Építőanyag: Kérdezzen rá a hirdetőtől »
Fűtés jellege: Cirkó
Egész szobák: 4

Egyéb jellemzők

  • Terasz

Így keressen családi házat négy egyszerű lépésben. Csupán 2 perc, kötelezettségek nélkül!

Szűkítse a családi házak
listáját
Válassza ki a megfelelő
családi házat
Írjon a hirdetőnek
Várjon a visszahívásra