Eladó családi ház Alsóörs 183 500 000 Ft

Leírás

Eladó balatoni panorámás, új építésű lakóház Alsóörsön!


A CasaNetWork Balatonalmádi Ingatlaniroda eladásra kínálja a 1665-ös számú kiváló tulajdonságokkal bíró családi házát Alsóörsön!

Az alsóörsi panorámás lakóház jellemzői:

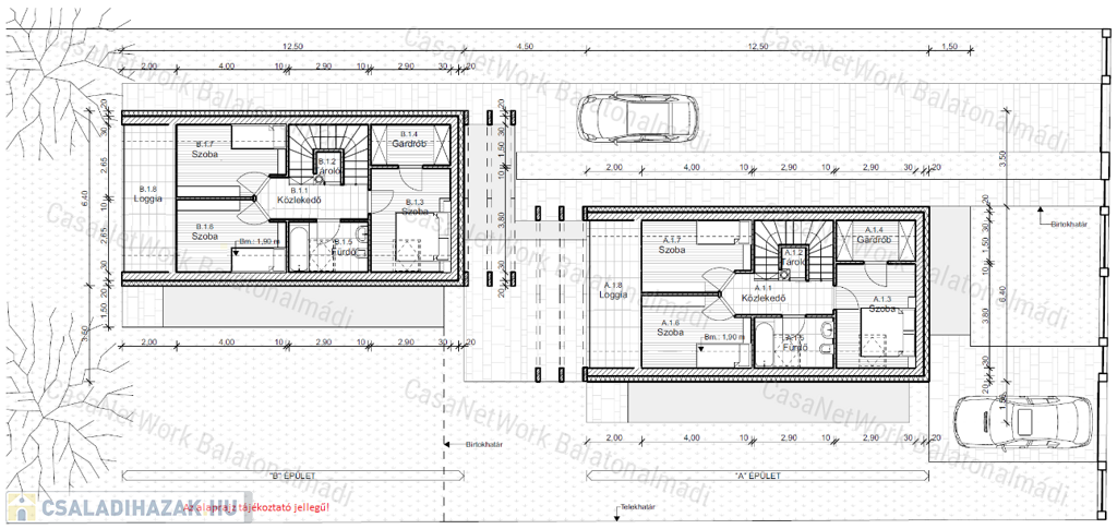
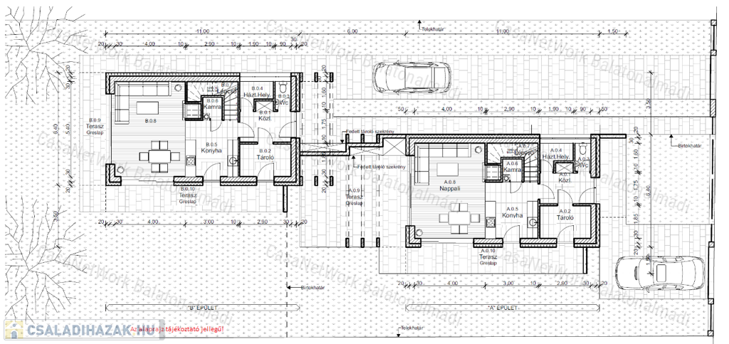
- 101 nm. lakótér + 31 nm. terasz és loggia

- Biztonságos, családias, kellemes zöldövezet, igazi balatoni hangulat; belterület, Lke-2 övezeti besorolás.

- A környék rendezett; a szomszédos telkek jó megjelenésű, karbantartott ingatlanokkal beépítettek.

- Kivételesen jó adottságú, sík, téglalap alakú telek: az ingatlan hátsókertje nem beépíthető külterülettel határos; így elragadó,  zavartalan panoráma nyílik a balatonfüredi öbölre és a Tihanyi-félszigetre.

- A strand rövid sétával elérhető.



- Az építési területen kétegységes lakóépület kerül
elhelyezésre, két különálló épületben. Az épületek szerkezeti fallal vannak
összekötve, így alkotva egy egységet. Az egyes épületek saját
kertkapcsolattal és autóparkolóval, bejárattal vannak kialakítva.



- Az egyes lakóegységek két szinten vannak elhelyezve.
Földszinten a nappali funkciók, illetve egy dolgozószoba; az emeletre kerülnek
a hálófunkciók. Az emeleten a Balaton felé tájolva két hálószoba, amelyeknek
közös közvetlen erkély kapcsolatuk van.



- A földszinten a saját használatú kert a nappali-konyha-étkezőből
érhető el. A bejárat mellett kapcsolódik az épülethez egy saját használatú tároló.



 - Szerkezeti kialakítás: Hagyományos épületszerkezeti
rendszerrel készül (beton sávalap, falazott tégla teherhordó falszerkezet, vb.
födém, fűrészelt fa-szerkezetű nyeregtető, cserép fedéssel). A homlokzati
falszerkezet kiegészítő hőszigetelést kap. Fűtése hőszivattyún (levegő-víz)
keresztül padlófűtés és háztartási melegvíz ellátás. Az épületben fatüzeléses
kandallóra lehetőség adott (kéményt az ár tartalmazza). Nyílászárók: 3rétegű hőszigetelt üvegezésű műanyag nyílászárókkal készül.

 - A bekerülési költség tartalmazza a hőszivattyús fűtést, a gépkocsibeállót, burkolatokat, szaniterberendezéseket, csaptelepeket, füvesítést, térkőburkolásokat,gépkocsibeállót, motoros kapunyitót, motoros redőnyöket, riasztórendszert.

- A kivitelező cég közel 30 éve foglalkozik komplex építészeti tervezéssel, kivitelezéssel, mérnöki szolgáltatással.

- Kiváló lehetőség saját célra vagy befektetésnek.  



Amennyiben az 1665-ös számú a CasaNetWork Ingatlaniroda által hirdetett alsóörsi lakóház, vagy bármely a kínálatunkban található ingatlan felkeltette érdeklődését, kérem  hívjon a megadott telefonszámon! 

Schultheisz Brigitta

+ 36 20 250 4403

 

Vásárolna, de nincs rá keret ? Kollégám díjmentes, banksemleges hitelügyintézéssel áll rendelkezésére .

 

CasaNetWork -  A civilizált ingatlanértékesítés artériája!

 

Családi ház részletei

Ár: 183 500 000 Ft
Méret: 117 négyzetméter
Azonosító: 11194938
Irodai azonosító: 163701665
Telek: 736 négyzetméter
Ingatlan állapota: Kitűnő
Jelleg: ikerház
Építőanyag: Tégla
Komfort fokozat: Összkomfort
Egész szobák: 4
Fél szobák: 1

Így keressen családi házat négy egyszerű lépésben. Csupán 2 perc, kötelezettségek nélkül!

Szűkítse a családi házak
listáját
Válassza ki a megfelelő
családi házat
Írjon a hirdetőnek
Várjon a visszahívásra