Eladó családi ház Alsóörs 169 990 000 Ft

Leírás

ÚJ ÉPÍTÉSŰ MODERN CSALÁDI HÁZ ALSÓÖRSÖN – PÁR PERCRE A KIKÖTŐTŐL

BALATON. STÍLUS. SZABADSÁG. – PRÉMIUM OTTHON ALSÓÖRS SZÍVÉBEN

Alsóörs csendes kertvárosias részén, a kikötőtől és a strandtól mindössze néhány perc sétára kínálok megvételre egy 2026-ban épülő, letisztult stílusú modern családi házat. Az ingatlan jogilag ikerház, a valóságban azonban teljesen önálló családi ház, közös fal nélkül – maximális intimitás, kompromisszumok nélkül.

Főbb jellemzői:
• 350 nm saját kert
• 110 m2 lakótér
• 4 hálószoba, 2 fürdőszoba, nappali-konyha
• 3 autó számára parkolási lehetőség
• 2 szintes, átgondolt alaprajz
• Modern hőszivattyús hűtés–fűtés

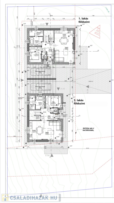
Földszint:
• teraszkapcsolatos, világos amerikai konyhás nappali
• 1 hálószoba (ideális dolgozó- vagy vendégszobának)
• fürdőszoba
• külön WC

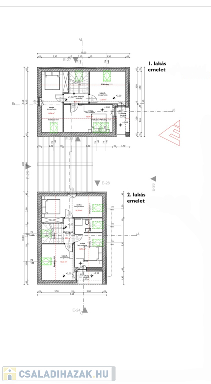
Emelet:
• 3 kényelmes hálószoba
• fürdőszoba
• 2 hálószobából megközelíthető, balatoni panorámás terasz, ahol a reggeli kávé igazi élménnyé válik

Ez az otthon tökéletes választás mindazoknak, akik modern műszaki tartalommal, letisztult designnal és Balaton-közeli életstílussal szeretnék ötvözni a mindennapokat – akár állandó lakhatásra, akár nyaralónak vagy befektetésnek.

Az ingatlan 2027 tavaszán kulcsrakész állapotban kerül átadásra. Az ár tartalmazza a kert teljes parkosítását, 3D kerítést és elektromos kaput is!

További részletekért, illetve kérdéssel vagy megtekintéssel kapcsolatban hívj bizalommal – HÉTVÉGÉN IS!

Családi ház részletei

Ár: 169 990 000 Ft
Méret: 110 négyzetméter
Azonosító: 11600586
Telek: 400 négyzetméter
Ingatlan állapota: Épülő
Jelleg: családi ház
Építőanyag: Tégla
Fűtés jellege: Hőszivattyú
Fűtés módja: Hőszivattyú
Komfort fokozat: Dupla komfort
Kor: Új építésű
Elhelyezkedés: Udvari
Szintek száma: 2 szint
Egész szobák: 5

Egyéb jellemzők

  • Csatorna
  • Parketta
  • Terasz

Térkép


Így keressen családi házat négy egyszerű lépésben. Csupán 2 perc, kötelezettségek nélkül!

Szűkítse a családi házak
listáját
Válassza ki a megfelelő
családi házat
Írjon a hirdetőnek
Várjon a visszahívásra