Eladó családi ház Alsónémedi 145 000 000 Ft

Leírás


Alsónémedin új építésű , hőszivattyús önálló családi ház eladó!



MODERN, ENERGIATAKARÉKOS hőszivattyús Önálló CSALÁDI ház CSODÁS KÖRNYEZETBEN eladó!


Éljen a lehetőséggel!!!! Még kettő ház közül választhat!!!!


BEVEZETŐ áron kínáljuk eladásra Alsónémedi legkedveltebb részén, igényes kivitelezésű, kedvelt elrendezésű CSALÁDI házakat!


Hitel ügyintézéssel kapcsolatosan is azonnal rendelkezésére állunk! CSOK igényelhető rá!


A BERUHÁZÓ SZÁMTALAN REFERENCIÁVAL RENDELKEZIK
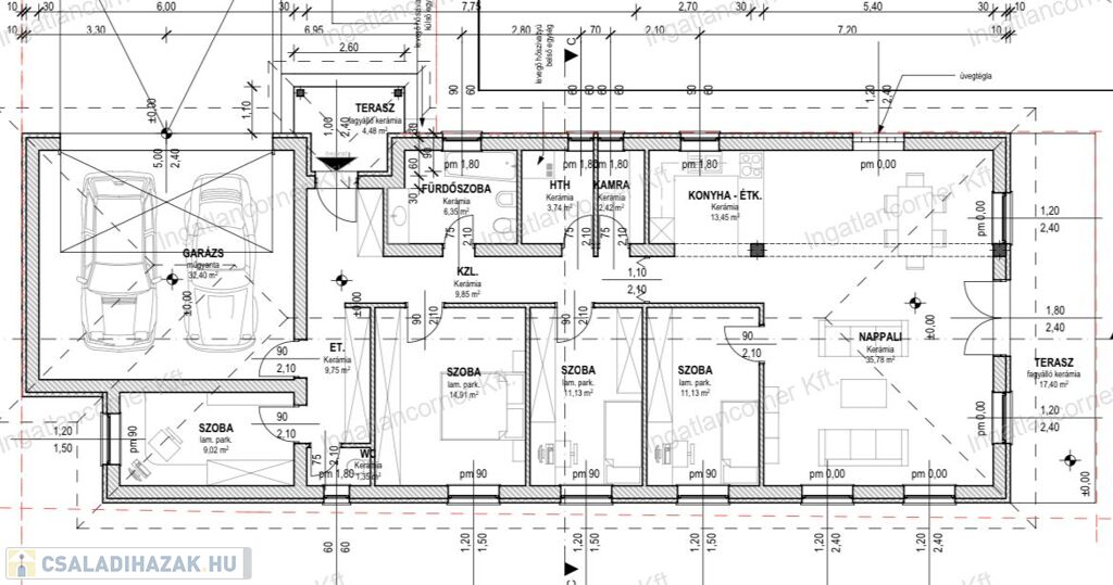
Az ingatlan 162nm-es, 30-as téglából épül 10 cm szigeteléssel, melyhez 671 nm-es telek tartozik, ára: 145.000.000 Ft
ENERGETIKAI BESOROLÁS: A





Elosztását tekintve kiváló: A hatalmas amerikai konyhás étkező-nappalin kívül, 4 hálószobával, 1 fürdőszobával, mosókonyhával, WC, kamra, rendelkeznek illetve 21 nm terasszal és 28nm garázzsal, elektromos ajtóval szerelve!


A fűtésrendszer és a meleg víz HŐSZIVATTYÚVAL működtetett padlófűtéssel kerül kiépítésre, gazdaságossá téve a fogyasztást termosztátokkal illetve a hűtésre minden helyiségben klíma kerül. 
Napelem előkészítés.

A falak 10 cm-es homlokzati, a padlástér pedig 2x15 cm-es szigeteléssel. A tető fedése Bramac betoncseréppel történik. A nyílászárók 3 rétegű üvegezéssel ellátottak és ELEKTROMOS redőnnyel és szúnyoghálóval szereltek.

Applikáciról működő klíma, fűtés és redőny!!!!



Igény szerint, választhatók a burkolatok, a belső ajtók, szaniterek, fürdőszobában zuhanyzó és kád is! Az ingatlanok várható átadása: 2025. tavasz eleje. 



Igényes, gondos, egyedi kivitelezés! Érdemes megtekinteni! Ne maradjon le róla!





5 út illetve MO autóút pár perc alatt elérhető, Auchan, Tesco, Aldi, Lidl 5 perc autó út. Prima 2 perc. Közelben új bölcsőde, óvoda található. Pár perc sétára tavak találhatóak a kellemes kikapcsolódásra. Friss levegő, a szomszédságban erdők, mezők idilli nyugalom a főváros határában.
Jöjjön el, tekintse meg az ingatlant!




Szívből ajánlom minden olyan érdeklődőnek, akinek fontos a minőség és kényelem, a jó közlekedés és valamint Budapesthez való pár perc alatti közelség, mégis megnyugtató szigetként funkcionáló meghitt családi otthon!



Várom hívását! Amennyiben nem tudom felvenni a telefont, hamarosan visszahívom! Hétvégén és esténként is nyugodtan kereshet bizalommal!



Független, ingyenes hitel-CSOK ügyintézéssel segítem kedves Ügyfeleimet, igen kedvező hitelekkel 2025-ben is!

Mivel ingatlanirodánk építész és ingatlanfejlesztő irodával párosul, így minden hiteles szakmai segítséget meg tudunk adni, mellyel segíteni tudjuk döntését (könyvelő, ügyvéd, energetikai tanúsítvány, kivitelezők, szakértői vélemények....)!



Ha a vásárláshoz el szeretné adni a jelenleg meglévő ingatlanját, ebben is nagyon szívesen segítek. Az Ingatlancorner Kft. igen alacsony közvetítői díjjal, a legmagasabb színvonalon képviseli az Ön érdekeit.

Ellenőrzött prémium partnerként várom megtisztelő bizalmát!



https://partner.ingatlan.com/tarr.krisztian

Családi ház részletei

Ár: 145 000 000 Ft
Méret: 162 négyzetméter
Azonosító: 11477972
Irodai azonosító: 107003933
Telek: 671 négyzetméter
Ingatlan állapota: Átlagos
Jelleg: családi ház
Építőanyag: Tégla
Komfort fokozat: Dupla komfort
Egész szobák: 5

Így keressen családi házat négy egyszerű lépésben. Csupán 2 perc, kötelezettségek nélkül!

Szűkítse a családi házak
listáját
Válassza ki a megfelelő
családi házat
Írjon a hirdetőnek
Várjon a visszahívásra