Eladó családi ház Alsónémedi 115 000 000 Ft

Leírás


A kivitelező számára Alsónémedi nem csupán a projektjeink helyszíne, hanem otthonuk is. 

 

A beruházás során 14 lakóház épül, melyből 9 már értékesítésre került, a helyszínen megtekinthetőek referenciái. Az otthonok folyamatosan épülnek, 6-7 hónapon belül költözhetőek. 

 

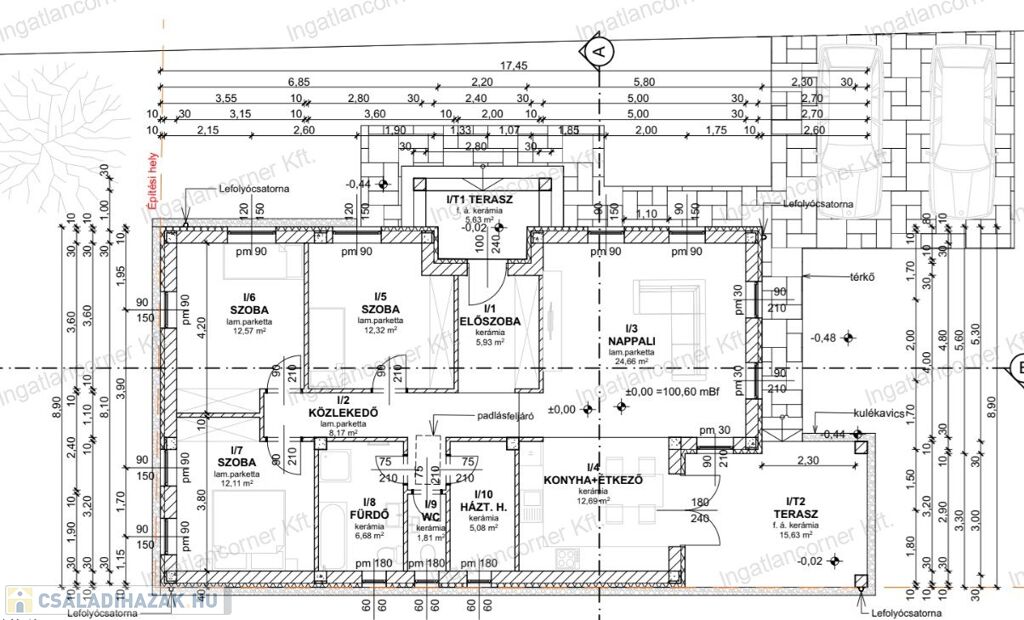
102m2 lakótér, melyhez 21 m2 terasz tartozik.

 

Alsónémedi csendes kertvárosi környezetében, alacsony autóforgalmú övezetben, erdőhöz közeli elhelyezkedéssel, délkeleti napos fekvéssel, magas igényszintű, hőszivattyús mediterrán stílusú családi házakat kínálunk. Az ingatlanok kulcsrakészen, A+ energetikai besorolással, 400-500 m² önálló telekkel kerülnek átadásra, melyekhez csatorna, villany és víz bevezetése is biztosított.

 

A kedvező elrendezésű lakásban előtér, amerikai konyhás nappali, káddal, zuhanyzóval, WC-vel és mosdóval felszerelt fürdő, külön WC, háztartási helyiség és három szoba kerül kialakításra.

 

Főbb adatok:

- C25/30-as sávalapbeton

- 30-as Porotherm / Leier tégla, 10 cm Porotherm válaszfaltégla

- Fa fedélszerkezetű tető, Bramac betoncserép héjalás

- 15 cm grafit szigetelés

- 3 rétegű műanyag nyílászárók

- Padlástérben járható, használható deszkafelület, gyapottal szigetelt

- Mitsubishi hőszivattyú, padlófűtés

- Nappaliban és szobákban fan-coil

 

Az ár tartalmazza a kulcsrakész állapotot, napelem előkészítést, riasztórendszert, kapukat, kerítéseket, termőföld feltöltést és a térköveket.

 

Az új tulajdonosok saját igényeikhez és elképzeléseikhez mérten választhatják ki a számukra legmegfelelőbb burkolatokat. Az árkategória 8.000 Ft/m²-ig a hideg burkolatok esetén, és 7.000 Ft/m²-ig a meleg burkolatoknál. Az egyedi igényekre szabott megoldások megvalósítása mellett készséggel kínálunk rugalmas finanszírozási lehetőségeket, amelyek segítik vásárlóinkat az ingatlanvásárlásban.

 

Kamattámogatott hitel, CSOK, zöld hitel, Áfa visszatérítés igényelhető. Babaváró hitellel jól kombinálható melyekben segíteni tudunk független szakértőkkel. 

- A cég magyar tulajdonban lévő többgenerációs családi vállalkozás.

-A jogszabályoknak megfelelő jótállást vállalja.

-Az ingatlanok jogilag rendezettek, a Helyi Építési Szabályzatnak és Településképi véleménynek eleget tesznek, a projekt tervezéskor a helyi önkormányzattal egyeztetett. 

-A vállalat maximálisan ügyfélbarát, kiemelt figyelmet fordít az egyedi igényekre.

-Rugalmas finanszírozási lehetőségeket biztosít.

-Tapasztalt szakemberekkel rendelkezik a tervezéstől a kivitelezésig. 

-A vállalt határidőket kivétel nélkül teljesíti.

-Per- és tehermentes.

-Minden projektnél kiemelt figyelmet fordítanak az energiatakarékosságra és az esztétikára.

Családi ház részletei

Ár: 115 000 000 Ft
Méret: 113 négyzetméter
Azonosító: 11472496
Irodai azonosító: 107003922
Telek: 450 négyzetméter
Ingatlan állapota: Átlagos
Jelleg: családi ház
Építőanyag: Tégla
Komfort fokozat: Összkomfort
Egész szobák: 4

Így keressen családi házat négy egyszerű lépésben. Csupán 2 perc, kötelezettségek nélkül!

Szűkítse a családi házak
listáját
Válassza ki a megfelelő
családi házat
Írjon a hirdetőnek
Várjon a visszahívásra