Eladó családi ház Albertirsa 98 000 000 Ft

Leírás

ELADÓ ALBERTIRSÁN, egy KÖZPONTI, ÖSSZKÖZMŰVES, ASZFALTOZOTT UTCÁBAN ÚJ ÉPÍTÉSŰ, FÖLDSZINTES, AKADÁLYMENTES, AZONNAL BEKÖLTÖZHETŐ családi ház (kétlakásos társasház) SAJÁT KERTTEL, KÜLÖN BEJÁRATTAL. KÉT GENERÁCIÓNAK IS ALKALMAS, KIEMELKEDŐ MŰSZAKI TARTALOMMAL + H tarifával.

1. lakás GARÁZS épülettel
- Elrendezés: 4 hálószoba + nappali + 2 fürdő + kamra + háztartási helyiség
- Lakótér: 127 m2
- Terasz: 22 m2, 600m2-es SAJÁT KERT
- Külön épület: 37 m2, KÉTÁLLÁSOS GARÁZS
- Teljes hasznos nettó terület: 175 m2 (127 + 37 + 11)
- Ár: 118 M Ft


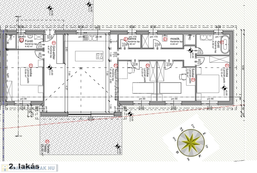
2. lakás
- Elrendezés: 4 hálószoba + nappali + 2 fürdő + kamra + háztartási helyiség
- Lakótér: 124 m2
- Terasz: 26 m2, 730m2-es SAJÁT KERT
- Teljes hasznos nettó terület: 137 m2 (124 + 13)
- Ár: 98 M Ft

Szerkezet és hőszigetelés:

- Főfal: Leier 30 NF tégla
- Válaszfalak: Leier 20 S és 10 tégla
- Padló alatti szigetelés: EPS 100 (10 cm)
- Külső nyílászárók: fehér műanyag, 3 rétegű üvegezéssel
- Födémszigetelés: 30 cm ásványgyapot
- Fa tetőszerkezet, tetőhéjazat: Bramac betoncserép
- Homlokzati szigetelés: 10 cm EPS
- Lábazati szigetelés: 5 cm + barna szemcsés díszvakolat

Gépészet és komfort:

VILLANYSZERELÉS: 3x16 A +1x25A H tarifás kiépítéssel.

- Hőszivattyú: japán Fujitsu High Power fűtésre és melegvíz-ellátásra
- Hidegburkolatos helyiségekben PADLÓFŰTÉS
- Szobákban és nappaliban digitális vezérlésű, HŰTŐ-FŰTŐ Galletti Flat FANCOILOK
- Fürdőszobánként 1 db törölközőszárító fali radiátor

Vízszerelés:
- 2 db fürdőszoba: fürdőnként törölközőszárítós RADIÁTOR; RAVAK ROSA II akril SAROKKÁD + zuhanyzó; GEBERIT WC falsík mögötti tartály nyomólappal.
A másik fürdőben zuhanyzó, + GEBERIT WC.


Elhelyezkedés és megközelítés
- ÖNÁLLÓ MEGKÖZELÍTHETŐSÉG, SAJÁT MÉRŐÓRÁK
- Vasútállomás: 15 perc séta / 2 perc autó
- Óvoda: ~900 m, bevásárlás: ~1 km
- Budapest: ~35 km

Praktikus, MINDENKI számára jól használható terek, korszerű gépészet és igényes szerkezet – MEGBÍZHATÓ, ÉRTÉKÁLLÓ választás.

Amennyiben felkeltette a meghirdetett ingatlan az érdeklődését, keressen bizalommal.

Kihagyhatatlan ajánlatok: CSOK+, kedvezményes kamatozású lakáshitelek.
Az ország szinte összes bankjának a hiteleit is kínáljuk, egyedi, általunk igénybe vehető kedvezményekkel, díjmentes ügyintézéssel.

Családi ház részletei

Ár: 98 000 000 Ft
Méret: 124 négyzetméter
Azonosító: 11573758
Irodai azonosító: 388701
Cím: ÚJ ÉPÍTÉSŰ 100%-os készültséggel!
Telek: 730 négyzetméter
Ingatlan állapota: Kitűnő
Jelleg: ikerház
Építőanyag: Tégla
Fűtés jellege: Geotermikus
Fűtés módja: Hőszivattyú
Komfort fokozat: Dupla komfort
Kor: Új építésű
Szintek száma: Földszintes
Egész szobák: 5

Egyéb jellemzők

  • Csatorna
  • Garázs
  • Pince
  • Terasz

Térkép


Így keressen családi házat négy egyszerű lépésben. Csupán 2 perc, kötelezettségek nélkül!

Szűkítse a családi házak
listáját
Válassza ki a megfelelő
családi házat
Írjon a hirdetőnek
Várjon a visszahívásra