Eladó családi ház Albertirsa 67 900 000 Ft

Leírás

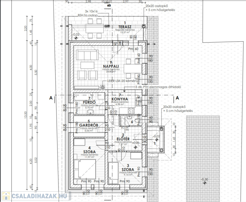
ALBERTIRSA – ÚJ ÉPÍTÉSŰ ÖNÁLLÓ CSALÁDI HÁZ ELADÓ!
723 m²-es telken épülő, 74,4 m²-es modern családi ház, 15,5 m²-es terasszal. Minőségi alapok: vasbeton sávalap, Porotherm falazat, fafödém cellulóz szigeteléssel, Terrán tető, hőszigetelt homlokzat. Nyílászárók: fehér műanyag külső, fa belső.Helyiségek: amerikai konyhás nappali teraszkapcsolattal, 2 háló, fürdő, külön WC, közlekedő. Az ár tartalmazza:- Burkolatok: laminált padló 5.000 Ft/m², járólap/csempe 7.000 Ft/m²- Fehér festés- 2,8 kW napelem- Padlófűtés + kondenzációs kazán- 3,5 kW klíma Törölközőszárítós radiátor- 1×32 A elektromos hálózat- Redőny előkészítés- 2 WC, szaniterek 250.000 Ft-ig, épített zuhany- Viacolor járda kaputól a házig és teraszig. Egyedi igények teljesítése, megtekinthető referenciákkal. A képek az előző munka folyamatáról készültek! Az építkezés foglalózás után kezdődik, kivitelezés 6-8 hónap. Nyugati – 48 perc Budapest: 50 km, Ferihegy repülőtér: 35 km (M4 autópályán) Ne maradjon le erről a lehetőségről! Hívjon bátran hétvégén is: Alitisz Judit  0620 4004009  Nézze meg a képeket – és ha el tudja képzelni itt új otthonát, hívjon bizalommal!
 
 
 
 
 
 
 
 

Családi ház részletei

Ár: 67 900 000 Ft
Méret: 74 négyzetméter
Azonosító: 11605298
Telek: 723 négyzetméter
Ingatlan állapota: Kitűnő
Jelleg: családi ház
Építőanyag: Kérdezzen rá a hirdetőtől »
Fűtés jellege: Egyéb
Komfort fokozat: Összkomfort
Egész szobák: 3

Egyéb jellemzők

  • Garázs
  • Kábel TV
  • Melléképület
  • Parketta
  • Pince
  • Terasz

Így keressen családi házat négy egyszerű lépésben. Csupán 2 perc, kötelezettségek nélkül!

Szűkítse a családi házak
listáját
Válassza ki a megfelelő
családi házat
Írjon a hirdetőnek
Várjon a visszahívásra