Eladó családi ház Albertirsa 124 000 000 Ft

Leírás

Albertirsán, központhoz közel eladó, 2023 nyarán átadandó 2 lakásos családi ház első lakása.
Főbb jellemzők:
-élhető tágas terek, kitűnő tájolás
- nettó 127 nm +22 nm terasz+ 37 nm KÉTÁLLÁSOS GARÁZS
-nappali+ 4 hálószoba+ 2 fürdő+ mosókonyha+ kamra
-Porotherm tégla falazat + dryvit rendszer
-hőszivattyús fűtés-hűtés, padlófűtéssel és szobánként digitális vezérlésű hűtő-fűtő Galetti Flat fancoilokkal ( H tarifás mérőórával)
- 3 rétegű hőszigetelt nyílászárók
-300 nm kert

A ház beosztása miatt két generáció számára is alkalmas lehet, hiszen egy hálószoba, és az egyik fürdőszoba a ház többi szobájától távolabb, a nappali által elválasztva található.
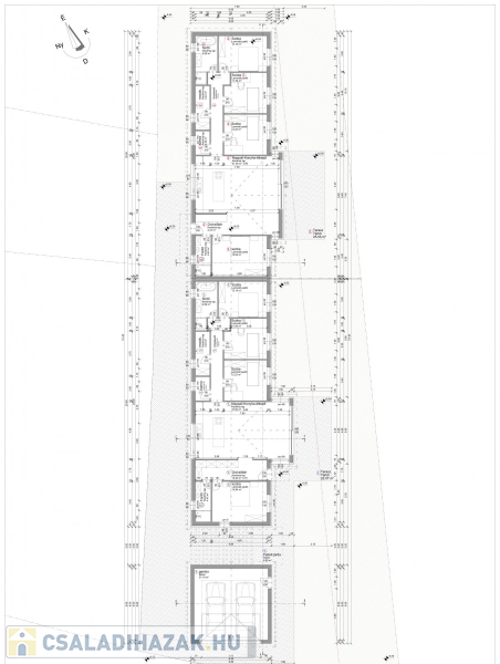
Tekintse meg az alaprajzot.

Családi ház részletei

Ár: 124 000 000 Ft
Méret: 127 négyzetméter
Azonosító: 11238841
Telek: 300 négyzetméter
Ingatlan állapota: Kitűnő
Jelleg: ikerház
Építőanyag: Kérdezzen rá a hirdetőtől »
Fűtés jellege: Egyéb
Egész szobák: 4
Fél szobák: 1

Egyéb jellemzők

  • Csatorna
  • Garázs
  • Kábel TV
  • Melléképület
  • Parketta
  • Pince
  • Terasz

Így keressen családi házat négy egyszerű lépésben. Csupán 2 perc, kötelezettségek nélkül!

Szűkítse a családi házak
listáját
Válassza ki a megfelelő
családi házat
Írjon a hirdetőnek
Várjon a visszahívásra