Eladó családi ház Albertirsa 104 000 000 Ft

Leírás

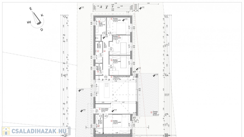
Albertirsa központhoz közeli részén új építésű, 150 nm-es( lakás 124 nm+ terasz 26 nm), 4 hálószobás, 2 lakásos családi ház HÁTSÓ része, 2023 nyári átadással, 104 millió Ft.-ért eladó.
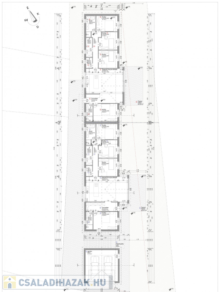
A projektben összesen 2 lakás kerül átadásra, 1330 nm-es telken, 104, és 124 millió Ft. értékben.
Mindegyik lakáshoz saját kert tartozik.
Az ingatlan alapterülete124 nm, az előszobából a világos, nagy ablakokkal és teraszajtóval rendelkező, dél-keleti tájolású nappaliba lépünk, amely étkezővel és konyhával egészül ki, így egy tágas térben lehet együtt a család. Külön helyiségben pedig egy zuhanyzóval és wc-vel felszerelt fürdőszobát is használhatunk. A nappaliból a teraszra jutunk ki, amely egy jól használható, privát kertben végződik.
Az előszobából a fürdő mellett még egy nagyobb alapterületű hálószobát is találunk.
A nappaliból továbbhaladva egy közlekedőt találunk, erről nyílik még 3 szoba és egy fürdőszoba , valamint a kamra, és egy mosókonyha.
A mosókonyhában találjuk a gépházat. Az épületben a legkorszerűbb japán Fujitsu HighPower hőszivattyús hűtés-fűtés lett beépítve (H-tarifás mérőórával együtt) ,padlófűtéssel és szobánként digitális vezérlésű hűtő-fűtő Galetti Flat fancoilokkal.
Magas műszaki tartalom és minőségi kivitelezés jellemzi az ingatlant. A leendő vásárlónak lehetősége van a saját igénye szerinti burkolatok, ajtók kiválasztására egy magadott összeghatáron belül.
Ebben a jól élhető házban egy család kényelmesen, kompromisszum mentesen és nyugalomban tud élni. A helyiségek beosztását tekintve KÉT GENERÁCIÓ számára is ideális választás lehet.
A környéket jó infrastruktúra jellemzi, ezzel maximális kényelmet kínálva leendő tulajdonosának. Biztosított a jó közlekedés és a bevásárlás lehetőségei.
Bővebb tájékoztatásért hívjon bizalommal!

Családi ház részletei

Ár: 104 000 000 Ft
Méret: 124 négyzetméter
Azonosító: 11238842
Telek: 400 négyzetméter
Ingatlan állapota: Kitűnő
Jelleg: családi ház
Építőanyag: Kérdezzen rá a hirdetőtől »
Fűtés jellege: Egyéb
Egész szobák: 5

Egyéb jellemzők

  • Csatorna
  • Garázs
  • Kábel TV
  • Melléképület
  • Parketta
  • Pince
  • Terasz

Így keressen családi házat négy egyszerű lépésben. Csupán 2 perc, kötelezettségek nélkül!

Szűkítse a családi házak
listáját
Válassza ki a megfelelő
családi házat
Írjon a hirdetőnek
Várjon a visszahívásra