Eladó családi ház Adony 84 900 000 Ft

Leírás

VARÁZSLATOS TELKEN ÉPÜLŐ, TÁGAS CSALÁDI HÁZ, HŐSZIVATTYÚS FŰTÉSSEL, IDEÁLIS BENAPOZOTTSÁGGAL!


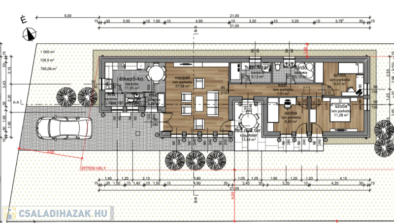
Adonyban eladó egy 1000 m2-es, telken épülő, ÚJ ÉPÍTÉSŰ, nettó 115 m2-es, 3 szoba + nappalis családi ház!

Az ingatlan ideális helyen épül, csend, nyugalom jellemzi a helyet!

Fontos, hogy az ingatlanvásárlás hosszú távon is értékálló befektetés legyen!

Kiváló adottságú telek előnyeit figyelembe véve alaposan átgondolt tervezés alapján épül az ingatlan benapozottsága optimális.

A beépített anyagok minőségének és a korszerű technológiának köszönhetően az ingatlan energiatakarékos, gazdaságosan üzemeltethető.

Rövid műszaki leírás:
A ház vasalt, szigetelt beton sávalapra épül, 30-as Porotherm tégla tartófalakkal és 10-es Porotherm tégla, vakolt válaszfalakkal.
A homlokzatra 15 cm-es dryvit, a lábazatra 10 cm-es xps, az aljzatra 10 cm-es lépésálló és a fa szerkezetű födémre 30 cm-es kőzetgyapot szigetelés kerül.
A tető fedése Terran cseréppel.
A fűtésről hőszivattyú gondoskodik, padlófűtéssel.

A hideg és meleg burkolatok igény szerint választhatók!

Ajánlom mindazon 1-3 gyerekes házaspároknak, pároknak, nyugdíjasoknak, akik egy igazán kiváló, jól megközelíthető, jó adottságokkal rendelkező, csendes, nyugodt helyen szeretnék élni a mindennapjaikat. Ha szeretne kiszabadulni a városi körforgásból, de mégsem akar végleg elszakadni tőle, akkor a legjobb választás ez a környék, ahol az ébredés után saját teraszán kortyolhatja a reggeli kávéját, szippanthatja magába a friss levegőt és hallgathatja a madarak csicsergését.

Amennyiben az ajánlatom felkeltette érdeklődését, kérem keressen telefonon.

Szép napot és sikeres vásárlást kívánok Önnek!

Családi ház részletei

Ár: 84 900 000 Ft
Méret: 127 négyzetméter
Azonosító: 11608825
Telek: 1000 négyzetméter
Ingatlan állapota: Kitűnő
Jelleg: családi ház
Építőanyag: Kérdezzen rá a hirdetőtől »
Egész szobák: 4

Egyéb jellemzők

  • Csatorna
  • Garázs
  • Kábel TV
  • Melléképület
  • Parketta
  • Pince
  • Terasz

Így keressen családi házat négy egyszerű lépésben. Csupán 2 perc, kötelezettségek nélkül!

Szűkítse a családi házak
listáját
Válassza ki a megfelelő
családi házat
Írjon a hirdetőnek
Várjon a visszahívásra