Eladó családi ház Ábrahámhegy 279 000 000 Ft

Leírás

Prémium medencés nyaraló Ábrahámhegyen – 180 fokos balatoni panorámával!


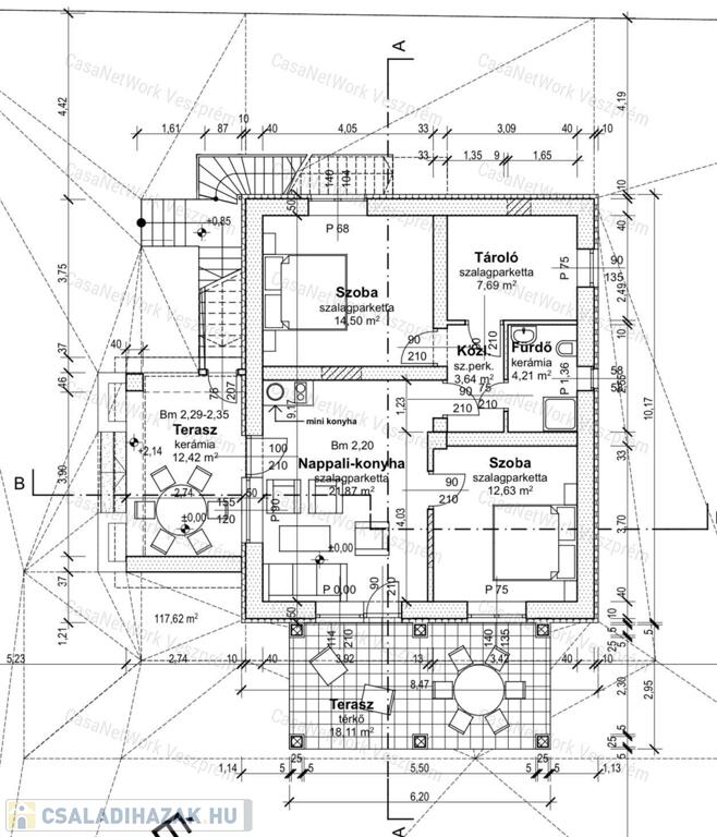
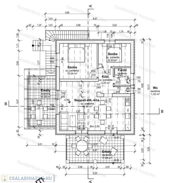
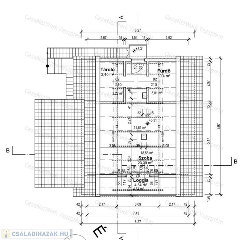
Lenyűgöző, 3 szintes (külön bejáratokkal), 8 szobás, 3+1 konyhás, 3 fürdőszobás luxusotthon, 5 erkély/terasszal, feszített víztükrű medencével, ideális több generáció vagy összeköltözők számára. A ház 2023-ban teljesen felújított, modern komforttal és stílusos részletekkel. 


A zöldövezeti telek távol a forgalomtól medencével, 4–5 autó számára kialakított parkolóval, teljes intimitást kínál. A Balaton panoráma és a csendes környezet a pihenés csúcsát nyújtja. Az ház akadálymentesen is megközelíthető a földszinti lakásból. 

Az ingatlan napelem rendszerrel, hűtő-fűtő légkondicionálókkal, infra padlófűtéssel, külső-belső szigeteléssel, többrétegű ablakokkal és biztonsági ajtókkal ellátott. Ezek együttesen gondoskodnak a biztonságról és a fenntarthatóságról. 

Ábrahámhegy az északi part különleges üdülőhelye, ahol a Balaton panorámája és a zöldövezeti nyugalom találkozik. A település sétatávolságra kínál strandot, ínycsiklandó éttermeket és alapvető szolgáltatásokat, miközben a környék kulturális látnivalói könnyen elérhetők – tökéletes választás a pihenésre, kikapcsolódásra és kényelmes nyaralásra.

Ha ez a különleges otthon felkeltette érdeklődését, kérem, keressen bizalommal a +36 20 288 4368-as telefonszámon.
Balla Ruben ingatlan-képviselő

Irodánk az ingatlan vásárlással összefüggő teljes körű ügyvédi, ill. díjmentes, banksemleges hitel-ügyintézéssel áll rendelkezésére.

CasaNetwork - A civilizált ingatlanértékesítés artériája!

Családi ház részletei

Ár: 279 000 000 Ft
Méret: 230 négyzetméter
Azonosító: 11600255
Irodai azonosító: 156202462
Telek: 1068 négyzetméter
Ingatlan állapota: Kitűnő
Jelleg: családi ház
Építőanyag: Tégla
Fűtés jellege: Egyéb
Fűtés módja: Villany
Komfort fokozat: Összkomfort
Bútorozott: Részben bútorozott
Egész szobák: 7

Így keressen családi házat négy egyszerű lépésben. Csupán 2 perc, kötelezettségek nélkül!

Szűkítse a családi házak
listáját
Válassza ki a megfelelő
családi házat
Írjon a hirdetőnek
Várjon a visszahívásra