Eladó családi ház Aba 64 900 000 Ft

Leírás

Vásárláson gondolkodik? Ne habozzon! Használja ki az idén MÉG IGÉNYBE VEHETŐ családtámogatási lehetőségeket!

AZ INGATLAN ALKALMAS 5%-os ÁFA, CSOK, CSOK HITEL IGÉNYBEVÉTELÉRE!


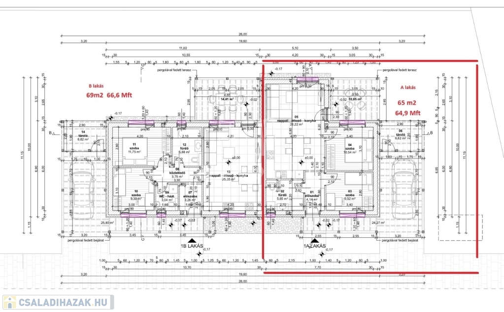
H-003888. Belsőbárándon, frekventált, kedvelt új építésű részén, összközműves építési telken, lakóparki, egyszintes, igényes, egyedi kivitelezésű 65m2 alapterületű, nappali + 2 szobás ikerház „ A „ jelű lakása , saját telek területtel ,terasszal, fedett gépjármű beállóval.

AA+ -os Energiahatékony ingatlan, rezsiköltség rendkívül alacsony! Rövid birtokba adási idő!
Az ingatlan könnyen megközelíthető, a környék tömegközlekedése jó, pár perc alatt gyalogosan elérhető a buszmegálló, bolt…

Ingatlan bemutató videó: https://youtu.be/2Hr9idGhUlc

A ház tágas, világos, körbe napozott, minőségi anyagokból készült. Külső határoló főfalak Leiertherm 30 NF falazóblokkból, 15 cm szigeteléssel, padlástér OSB lapokkal elválasztva, rajta 5cm Hanggátló ásványgyapot szigeteléssel készült. A válaszfalak Leierherm 10 NF válaszfaltéglákból épültek. A födémen 30 cm vastag ásványgyapot kerül lerakásra, a külső borítás Bramac Antracit cseréppel készül alatta a megfelelő vastagságú fóliázattal, lenyitható padlásfeljáróval, járhatóvá, rakodhatóvá tehető padlástérrel, padlástéri megvilágítással

A nyílászárók műanyagból készültek, 5 kamrás,3 rétegű hőszigetelt üvegezéssel, rajtuk alumínium redőny (teraszon elektromos) választható opció. Az ingatlan riasztórendszer, klíma kiépítéssel rendelkezik. A burkolatok tetszés szerint választhatók. Fűtése-melegvíz: hőszivattyú, 2 db klíma alapszerelés készül, elektromos panelekkel. Szennyvízelvezetés, zárt rendszerű, modern, biológiailag lebomló rendszerű ülepítőben történik.

A ház elosztását tekintve: Amerikaikonyhás nappali + 2 egész szoba, praktikusság miatt fő szempont volt, az élhető terek kialakítása is ezért 9,5-10,5 m2 nagyságú hálószobák készültek, továbbá fürdőszoba kialakításra került wc-vel ellátva, valamint vendég wc, terasz, tároló

Az ár tartalmazza az alapszereléseket, a tereprendezést, két ház közötti és az oldal kerítéseket nem, viszont utcafronti kerítés kapu készül. Napelem-napkollektor rendszer telepíthető.

Fontosabb paraméterek:
● 2023-ban épült
● kb 600m2 önálló telekterület
● Vastag tégla falazat (Leierherm 30 NF kerámia+15 cm szigetelés),
● Nappali + 2 hálószoba + fürdőszoba+ vendég wc+ terasz (10,85m2 térkövezett)
● H tarifás villany
● Akadálymentesített bejutás
● Hőszivattyú + elektromos panelek
● 2 db Klíma alapszerelés, és a riasztó rendszer kiépítve,
● Alacsony rezsiköltség, 5%- ÁFA visszatérítés

Igény esetén, a két lakás egybenyitható, így akár egy 166m2-es nappali+5 szobás, 3 fürdőszobás családiház is kialakítható kedvező áron.

Megbízható és tapasztalt ingatlanfejlesztő, kivitelező jegyzi a ház építését, számtalan referenciaépülettel rendelkezik Székesfehérváron. A vásárláshoz, a jelenleg aktuális családok „újépítésű” otthonteremtésére vonatkozó összes támogatás igénybe vehető (Új Építésű CSOK, 5 %-os Áfa visszatérítés Jelzáloghitel, Babaváró kölcsön…)
Eladási irányár: 64,9 M Ft

Az ingatlan adottságainak, fekvésének köszönhetően alkalmas továbbá vállalkozásra, üzleti vagy befektetési célra, hiszen akár bérbe adható, vagy üzlet, szolgáltatás (pl: orvosi rendelő, fodrász, kozmetika, irodai tevékenység,(Csendes tevékenység engedélyezett).

Ha felkeltette érdeklődését, hívjon bizalommal, (hétvégén is) éljen ingyenes, személyre szabott hitelügyintézés szolgáltatásunkkal. Segítünk továbbá adásvételhez szükséges ügyvédi közreműködésben, energetikai tanúsítvány, valamint értékbecslés elkészítésében.

For English information please send a message.

Családi ház részletei

Ár: 64 900 000 Ft
Méret: 65 négyzetméter
Azonosító: 11431379
Irodai azonosító: 355853
Cím: Belsőbárándon
Telek: 500 négyzetméter
Ingatlan állapota: Átlagos
Jelleg: ikerház
Építőanyag: Tégla
Fűtés jellege: Geotermikus
Fűtés módja: Hőszivattyú
Komfort fokozat: Összkomfort
Kor: Új építésű
Szintek száma: Földszintes
Egész szobák: 3

Egyéb jellemzők

  • Csatorna
  • Garázs
  • Pince
  • Terasz

Térkép


Így keressen családi házat négy egyszerű lépésben. Csupán 2 perc, kötelezettségek nélkül!

Szűkítse a családi házak
listáját
Válassza ki a megfelelő
családi házat
Írjon a hirdetőnek
Várjon a visszahívásra