Kiadó családi ház Miskolc 500 000 Ft

Leírás


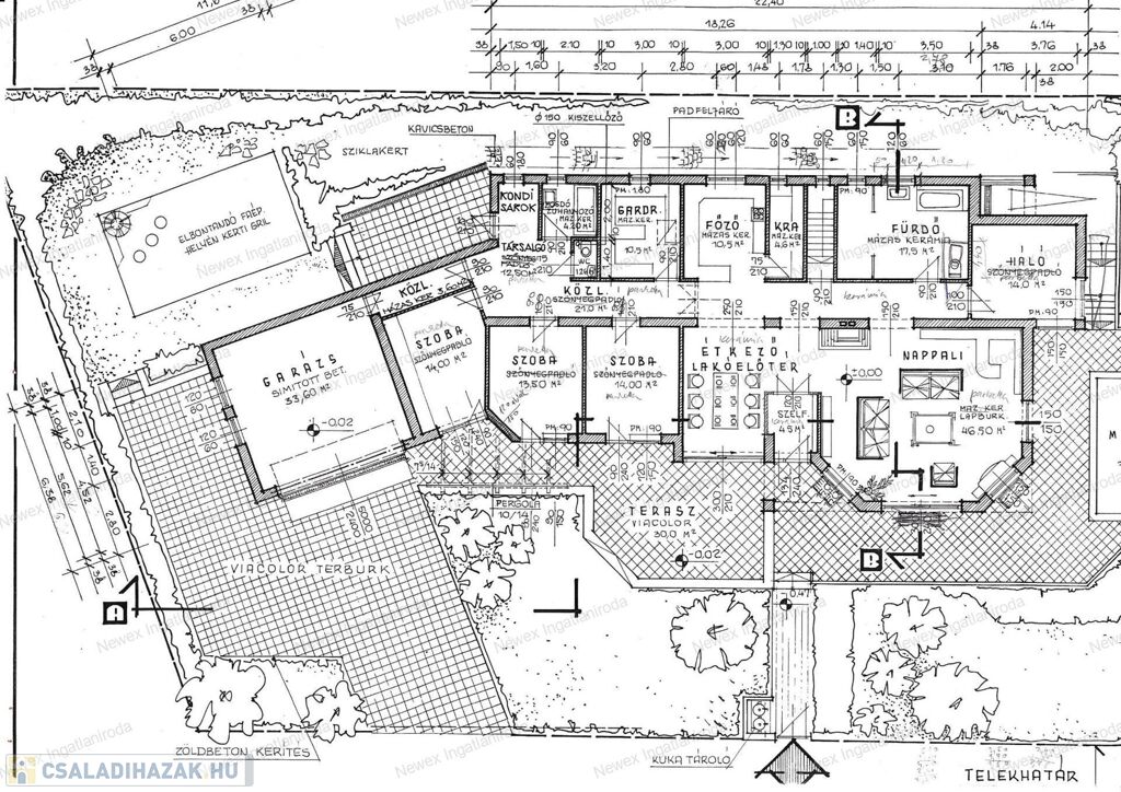
6 szobás, 240 m2-es családi ház kiadó Miskolc-Tapolca egyik legkedveltebb részén! Miskolc-Tapolca legkisebb lejtőszögű utcájában kiadó egy a 2005-ben épült 240 m2-es, 5+1 félszobás családi ház dupla garázzsal.



A ház földszintes lakóterében található egy tágas nappali - étkező, konyha, kamra, 4 hálószoba, 1 félszoba, 1 gardróbszoba, 2 fürdőszoba, 2 WC, előszoba, közlekedők, dupla garázs, nagyméretű nappali-kapcsolatos terasz.

A ház fűtéséről kondenzációs gázkazán gondoskodik, hidegburkolatos helyiségekben padlófűtéses,  a szobákban radiátoros hőleadással. Vízlágyító rendszer biztosítja a megfelelő keménységű vízet! Minden helyiségben műanyag hőszigetelt ablakok vannak elektromos redőnnyel. 

Az egy szintes lakótér alatt található egy alagsori szint is, ahol egy sport szoba, finn szauna zuhanyzókkal, illetve igény szerint tárolóhelyiség is rendelkezésre áll. 

Az udvar 2.000 m2, melynek jelentős része parkosított és öntözőrendszerrel ellátott. A kertkapu és a garázskapu is elektromos működtetésű.



Bérleti díj: 1200 euro/ hó + rezsi, a bérleti díj tartalmaz tavasztól őszig havi 2 alkalommal kertgondozási munkálatokat saját kertésszel.



Minimális bérlési idő 12 hónap. 3 havi kaució szükséges a bérleti szerződés megkötésekor.

 

Amennyiben felkeltettem az érdeklődését, úgy kérem hívjon és örömmel megmutatom Önnek ezt a kiváló házat!

Családi ház részletei

Ár: 500 000 Ft/hónap
Méret: 240 négyzetméter
Azonosító: 11555609
Irodai azonosító: 698900556
Telek: 2000 négyzetméter
Ingatlan állapota: Kitűnő
Jelleg: családi ház
Építőanyag: Tégla
Komfort fokozat: Összkomfort
Egész szobák: 5
Fél szobák: 1

Így keressen családi házat négy egyszerű lépésben. Csupán 2 perc, kötelezettségek nélkül!

Szűkítse a családi házak
listáját
Válassza ki a megfelelő
családi házat
Írjon a hirdetőnek
Várjon a visszahívásra