Kiadó családi ház Gyál 900 000 Ft

Leírás

KIADÓ munkás szállás Gyálon / Budapest 18.ker határán a Pesti úton.
Összesen 5 apartman egy telken!

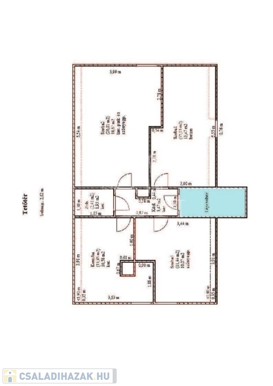
A kertes ház, csendes,de mégis jó helyen lévő ,belső két szintes, össz. 150nm-es, nappali + 5 szobás 13 férőhellyel hosszú távra kiadó.
1.számú lakás:
-nappali, konyha, fürdő+WC
-tároló
-kazánház

2.számú lakás
-konyha
-szoba
-szoba
-szoba
-fürdő+WC

3 db apartman lakás a ház hátsó részében kialakítva.

Mindegyikhez tartozik fürdő+Wc és egy konyha.
Az ingatlan azonnal költözhető.

Bérleti díj: 900.000.-Ft+ 15% személyi adó
Összes rezsi költség: 200.000.-Ft/hó, mely minden költséget tartalmaz.

Parkolás az udvaron és a ház előtt ingyenes. Jó közlekedés.Buszmegálló 50 m-re.
Várom hívását!

Worker's accommodation for rent in Gyál/ Budapest 18.ker border on Pesti út.
5 Apartments altogether

The house with a garden is still in a good location, two floors inside, total. 150 sqm, living room + 5 rooms with 13 beds for long-term to rent.
Apartment number 1:
-living room, kitchen, bathroom+toilet
-storage
- boiler house

Apartment number 2
-kitchen
-room
-room
-room
- bath + toilet

3 Apartments

Each has a room +kitchen+bathroom


Altogether : 5 apartments to rent


The property can be moved into immediately.

Rent: HUF 650,000 + 15% personal tax
Total monthly cost: HUF 200,000/month, which includes all expenses.

Parking in the yard and in front of the house is free. Good public transport. Bus stop is 50 m away.

I'm waiting for your call!

Családi ház részletei

Ár: 900 000 Ft/hónap
Méret: 250 négyzetméter
Azonosító: 11398742
Irodai azonosító: 369795
Cím: Pesti út
Telek: 600 négyzetméter
Ingatlan állapota: Átlagos
Jelleg: családi ház
Építőanyag: Tégla
Fűtés jellege: Cirkó
Fűtés módja: Gáz
Komfort fokozat: Összkomfort
Kor: 21-50 éves
Szintek száma: 1 szint
Egész szobák: 9

Egyéb jellemzők

  • Csatorna
  • Garázs
  • Pince
  • Terasz

Térkép


Így keressen családi házat négy egyszerű lépésben. Csupán 2 perc, kötelezettségek nélkül!

Szűkítse a családi házak
listáját
Válassza ki a megfelelő
családi házat
Írjon a hirdetőnek
Várjon a visszahívásra