Kiadó családi ház Debrecen 700 000 Ft

Leírás

Debrecenben, Nagyerdő alján található ez a kiváló állapotú ikerház, amely minden igényt kielégít, legyen szó magáncélú lakhatásról vagy befektetési lehetőségről.
Eladó-Kiadó ingatlan!!!!!
Az ikerház egyedi tervezésének köszönhetően minden részlete a modern életstílust tükrözi, ideális választás azok számára, akik az exkluzív és világos otthonokat kedvelik.
2019-ben épült, alapterülete 240 nm, mely tágas tereivel és modern kialakításával azonnal magával ragadja a látogatót.
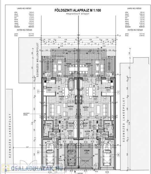
3 szinten helyezkednek el a ház helyiségei:

PINCE SZINT:
-előtér 13,6nm
-gépészeti helyiség 8,95nm
-nappaliként funkcionáló, s egyben konyhai részt is magában foglaló tér 49,2nm
-mosó-konyha 4,13nm
-szauna szoba 5,4nm
-wc -kézmosó 1,8nm
-kamra 2nm
FÖLDSZINT:
-terasz 22nm
-nappali, étkező 40nm
-konyha 7nm -gépesített, full extrás
-előtér 6nm
-zuhany-wc 4,5nm
-közlekedő 2,2nm
-lépcsőfeljáró 2,4nm
-garázs 15 nm
-átrium 22 nm
EMELETI SZINT:
-dolgozó szoba 14,3nm
-háló szoba 3 db (13,7-13,1-13,3 nm)
-fürdőzoba 6,18nm
-közlekedő 8,6nm
-lépcsőfeljárat 7,7nm
-zuhanyz-wc 4,95

Az ingatlan prémium kivitelezéssel készült, amely magában foglalja a beépített bútorokat és szekrényeket, a modern LED hangulatvilágítást, valamint a motoros redőnyöket.
A ház fűtése hőszivattyús falfűtés és padlófűtés, falhűtéssel történik a klimatizálás.
NAPELEMRENDSZER A HATÉKONY ÉS TAKARÉKOS KÖLTSÉGMINIMALIZÁSÁRA!!!
A kandalló nemcsak melegséget, hanem egyedi hangulatot is kölcsönöz a nappalinak, amely a családi összejövetelek középpontja lehet. Az ingatlan okos otthon rendszerrel is rendelkezik, amely lehetővé teszi a különböző funkciók távoli vezérlését, így az otthon kényelmesebbé és biztonságosabbá válik.
A környék ellátottsága kiváló, hiszen a közeli üzletek, éttermek és szolgáltatások mindössze néhány perc távolságra találhatók.
A közlekedés is kitűnő, hiszen a város tömegközlekedési hálózata könnyen elérhető, így a város bármely pontja gyorsan megközelíthető.
Az ingatlanhoz tartozik egy garázs is, amely egy autó számára biztosít helyet, valamint az elektromos autó töltés lehetősége is adott.
Nyitott beállók száma 4 autónak jelent parkolási lehetőséget.
A rendezett kert automata öntözőrendszerrel van felszerelve, így a zöld területek karbantartása könnyedén megoldott.
A biztonságra is nagy hangsúlyt fektettek, hiszen a riasztórendszer és a videókaputelefon garantálja a nyugalmat.
A ház tehermentes, így az új tulajdonos azonnal birtokba veheti.
Bármilyen kérdése van az ingatlannal vagy a vásárlási folyamattal kapcsolatban, bizalommal keressen!
Szívesen állok rendelkezésére, hogy segíthessek megtalálni álmai otthonát vagy befektetését!

Családi ház részletei

Ár: 700 000 Ft/hónap
Méret: 240 négyzetméter
Azonosító: 11597601
Telek: 200 négyzetméter
Ingatlan állapota: Kitűnő
Jelleg: ikerház
Építőanyag: Kérdezzen rá a hirdetőtől »
Egész szobák: 6

Egyéb jellemzők

  • Csatorna
  • Garázs
  • Kábel TV
  • Melléképület
  • Parketta
  • Pince
  • Terasz

Így keressen családi házat négy egyszerű lépésben. Csupán 2 perc, kötelezettségek nélkül!

Szűkítse a családi házak
listáját
Válassza ki a megfelelő
családi házat
Írjon a hirdetőnek
Várjon a visszahívásra