Kiadó családi ház Budapest XVI. ker 550 000 Ft

Leírás

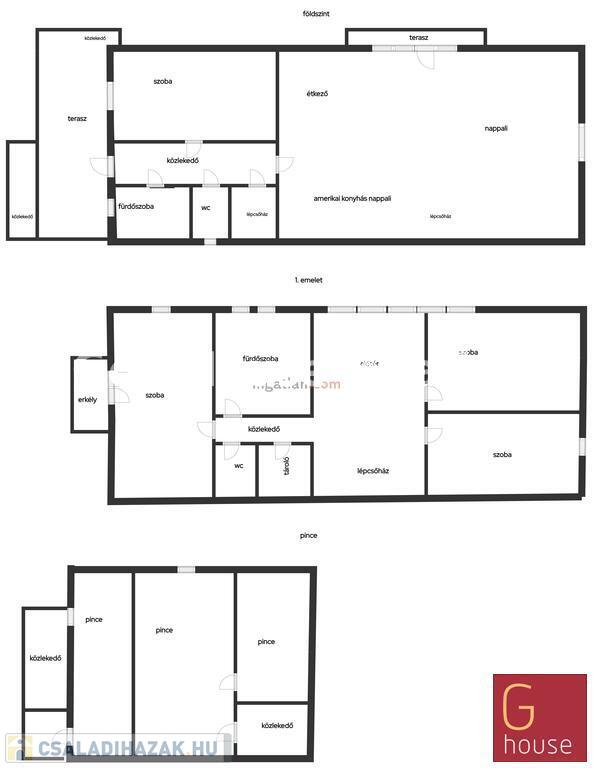
A ház igényes belső kivitelezéssel (spanyol járólappal, minta-termi csempézéssel, sarokkádas, dupla mosdós fürdőszobával, bidével, stb.)épült. Jó elosztású, kényelmes, minden igényt kielégítő időtöltés.

Két szintes. Alul egy 54 nm-es nappali, egy jól felszerelt amerikai konyhával, étkezővel és egy közlekedővel csatlakozó lakrész egy szobával, fürdővel. (Külön wc). A nappaliban élmény kandallós fűtőtest.

A nappaliból vezet az emeletre a lépcső, ahol egy nagy és két kisebb hálószoba található. A nagyobb szobához kis udvarra néző erkély csatlakozik. A pihenőből kis folyosón keresztül vezet az út a nagy sarokkádas fürdőszobába. (Szemben a wc bidével.) (Mindkét fürdőben mosógép kiállás van, felső szinten mosógéppel.)
Itt van még egy gardrób boltíves bejárattal és a kombi-cirkó, ami az egész ház fűtésére és a felső szint meleg víz ellátására hivatott. (Alsó szinten a villany bojler biztosítja a meleg vizet) (Ez a pincében van elhelyezve.)
A földszintről lépcső vezet a pincébe, amely két helyiségből áll. Járólapozott, polcozott.
A ház bejárata hátul, az udvar felől van, egy kb. 10 nm-es teraszról nyílik, amely alatt szintén pince van külső bejárattal.
A nappalinak van egy 4 részes panoráma ajtaja. A lakás vonzereje a sok, nagy ablak felület, amitől barátságos hangulatú és világos lesz. (És egyben áram is kevesebb fogy.)
A panoráma ajtó elött kis terasz és esőfogó.

A ház elött és mögött virágok, diszcserjék, tuják és kis pázsit, amely akár a gyerekek mozgásigényének, akár egy kisebb kerti partihoz, sütögetéshez kellemes helyet biztosít.
A bejárattal szemben, a kert sarkában kapott helyet a garázs. Méreténél fogva bármely személyautó, vagy kisbusz is elfér benne és a család kerékpárjainak, vagy motorjának is helyet tud adni. A kertbe több kocsival is be lehet állni, de a ház elött is lehet ingyenesen parkolni a nagy diófa alatt.

Az utca csendes. A szomszédok barátiak, segítőkészek.
A környéken minden megtalálható, ami a mindennapi szükségletek kielégítéséhez kell.(Pl. bankok, cba, lidl, rossmann, zöldséges, pékség, cukrászda, éttetem, optikus, posta, gyógyszertár, sztk, iskola, óvoda, lottózó, biztosító, stb.)

A közlekedés jó. A gödöllői hév, 176E, 276E, 44, 45, 46, 177, ami gyors elérést biztosít több szomszédos kerületbe és a belvárosba is. (Éjszakai járat is megáll a közelbe.)

A bérleti díj: 550.000 Ft + rezsi
Két havi kaució.

Keressen bizalommal, hogy megmutathassam Önnek ezt remek lehetőséget.

Családi ház részletei

Ár: 550 000 Ft/hónap
Méret: 220 négyzetméter
Azonosító: 11563376
Irodai azonosító: 14080
Cím: Budapest 16.kerület Sashalom utca
Telek: 770 négyzetméter
Ingatlan állapota: Felújított
Jelleg: ikerház
Építőanyag: Kérdezzen rá a hirdetőtől »
Fűtés jellege: Központi egyedi mérővel
Fűtés módja: Gáz
Komfort fokozat: Dupla komfort
Elhelyezkedés: Utcafronti
Szintek száma: Földszintes
Egész szobák: 5
Fél szobák: 1

Egyéb jellemzők

  • Melléképület
  • Parketta
  • Pince
  • Terasz

Így keressen családi házat négy egyszerű lépésben. Csupán 2 perc, kötelezettségek nélkül!

Szűkítse a családi házak
listáját
Válassza ki a megfelelő
családi házat
Írjon a hirdetőnek
Várjon a visszahívásra