Kiadó családi ház Biatorbágy 3 500 Euro

Leírás

Biatorbágy kertvárosias részén kiadó egy új építésű modern, kifinomult családi ház!
Tágas terek, gyönyörű szobák, rengeteg extra, és remek elrendezés!

Az épület 2023-ban épült, minden dokumentáció megtalálható a házhoz. Az ingatlant egyedi tervezés és minőségi alapanyagok jellemzik.

Rövid műszaki tartalom:
• A falak 30-as téglából épültek
• 20 cm-es szigetelés + a vakolat 2,5 cm
• Hő és hang szigetelt nyílászárók, 3 réteges ablak
• Az ingatlan saját csatornarendszerrel rendelkezik.
• Smart-home (Okos otthon)
• Riasztó, kamerarendszer
• Medence (9x5m)
• Padlófűtés – mennyezeti hűtés.
• Tágas dupla garázs


A telek területe: 750m2

A kertben megtalálható medence mérete: 9x5 méter , illetve a kert kialakított és beprogramozható locsolórendszerrel ellátott.

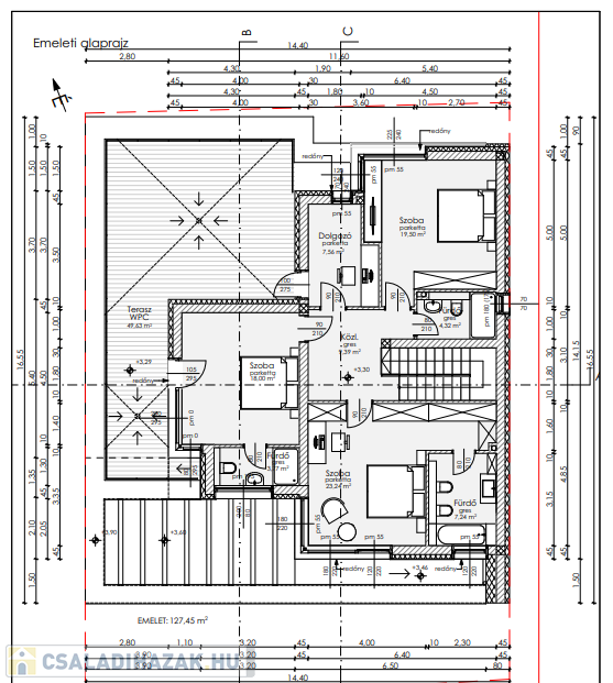
Az épület alapterülete: 310m2

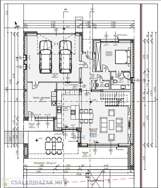
A földszinten található a garázs (40,80m2) a tároló és a gépészeti egység.

A földszinten egy hálószoba(16,64m2) saját fürdőszobával(5,87m2), egy wc helyiség, egy kamra (2,61m2)

Ezek mellett a földszinten még megtalálható egy minden igényt kielégítő tágas amerikai konyhás nappali (15,04m2) + (43,20m2).

Az első emeleten 4 darab szoba plusz szobánként egy fürdőszoba,

Minden egyes szobához saját fürdőszoba tartozik,és szobánként állítható termosztát tartozik, illetve a redőnyök és a lámpák távirányítóval irányíthatóak. A 4 szobából 2 terasz kapcsolatos.

A közelben megtalálható Penny, Rossmann, Fressnapf, Príma, Pepco.
Tömegközlekedés gyalog pár percre található, illetve az M1-es autópálya is gyorsan megközelíthető.

Az ingatlan nem állatbarát, illetve nem támogatott a házon belüli dohányzás.
Az ár magába foglalja a bútorzatot is.

A ház október-novembertől költözhető 2 havi kaució és 1 havi bérleti díj ellenében.

Ha felkeltette az érdeklődését az ingatlan , kérem keressen bizalommal, szívesen megmutatom egy előre egyeztetett időpontban. Angolul is szívesen beszélek.

Tőlünk vásároló ÜGYFELEK számos kedvezményt vehetnek igénybe mint pl. független- ingyenes hitelügyintézés és tanácsadás, MÖMAX áruházban vásárlás esetén 10 % , DIEGO-ba vásárlás esetén 10%, Vét-Gát vagyonvédelem- Szolgálat ingyenes bekötés, Sentinel- Max védelmi szolgálat ingyenes bekötés, Asztalos belső építés minden megrendelésből 10%, Enterprise Development online marketing és honlap készítés 10%.

Családi ház részletei

Ár: 3 500 Euro/hónap+ÁFA
Méret: 310 négyzetméter
Azonosító: 11427871
Cím: Csodaszarvas Utca
Telek: 750 négyzetméter
Ingatlan állapota: Kitűnő
Jelleg: családi ház
Építőanyag: Tégla
Fűtés módja: Hőszivattyú
Komfort fokozat: Luxus komfort
Kor: Új építésű
Elhelyezkedés: Panorámás
Szintek száma: 2 szint
Bútorozott: Bútorozott
Egész szobák: 5
Nappalik: 1

Egyéb jellemzők

  • Beépíthető tetőtér
  • Csatorna
  • Garázs
  • Kábel TV
  • Melléképület
  • Padlás
  • Parketta
  • Pince
  • Terasz

Térkép

Videók (1)


Így keressen családi házat négy egyszerű lépésben. Csupán 2 perc, kötelezettségek nélkül!

Szűkítse a családi házak
listáját
Válassza ki a megfelelő
családi házat
Írjon a hirdetőnek
Várjon a visszahívásra