Az értékesítő:
Horváth Zsuzsa
+36 30 983 0465

Eladó családi ház Szeged, 265 000 000 Ft, 300 négyzetméter

265 000 000 Ft
családi ház, 300 négyzetméter
Egész szobák:
8
Ingatlan állapota:
Azonosító:
11614639
Értékesítés típusa:
eladó
Ingatlan típusa:
családi ház
Jelleg:
Családi ház
Település:
Szeged
Alapterület:
300
Ár:
265 000 000 Ft
Fűtés jellege:
Cirkó
Terasz:
Nincs
Erkély:
Nincs
Telekterület típusa:
négyzetméter
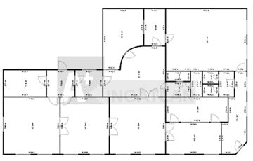
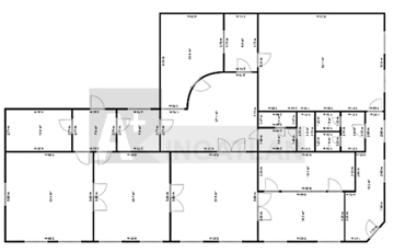
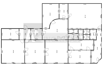
Szeged Dugonics utcában eladó kiváló adottságokkal rendelkező ingatlan. Jelenleg irodának használják, de lakhatásra is kiváló. Tulajdoni lapon kivett/ lakóház, udvar . Az ingatlan főbb paraméterei: -585 m2 telek -kb.300 m2 ház -kb.250 m2 száraz pince -8 szoba -belmagasság 3,3-3,86 m -4 wc -4 klíma -gáz-cirkó fűtés kondenzációs kazánnal -terasz 16 m2 -udvarban 3 fedett autóbeálló További kérdéssel forduljon hozzám bizalommal: Horváth Zsuzsa 06 30 98-30-465
https://csaladihazak.hu/elado/csaladi-haz/szeged/265-millio-ft;300-negyzetmeter;8-szoba;cirko-futes/11614639