Az értékesítő:
Horváthné Jauch Ildikó
+36 20 973 7207

Eladó családi ház Mohács, 54 990 000 Ft, 333 négyzetméter

54 990 000 Ft
családi ház, 333 négyzetméter
Építőanyag:
Tégla
Egész szobák:
8
Fűtés módja:
Gáz
Ingatlan állapota:
Azonosító:
11614458
Értékesítés típusa:
eladó
Ingatlan típusa:
családi ház
Jelleg:
Családi ház
Település:
Mohács
Alapterület:
333
Telekterület:
880
Ár:
54 990 000 Ft
Szintek száma:
Földszintes
Fűtés jellege:
Egyedi
Erkély:
Van
Telekterület típusa:
négyzetméter
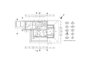
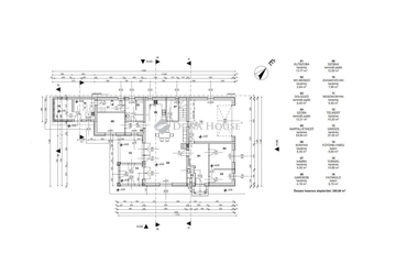
Félkész családi ház eladó Mohács egyik legszebb utcájában! Ez a lakóparki ingatlan, kiváló lehetőséget nyújt azok számára, akik saját igényeik szerint szeretnék befejezni és kialakítani jövőbeli otthonukat. Az ingatlan 880 m²-es telken helyezkedik el, a tervezett 333 m² alapterületű épület pedig tágas, jól alakítható tereket biztosít, így akár egy nagyobb család számára is ideális prémium otthon valósítható meg. A kivitelezés folytatásában teljes körű segítséget tudunk biztosítani, hiszen minden szükséges szakember rendelkezésre áll az építkezés befejezéséhez. Az építkezés főbb adatai: 38 cm-es Leiertherm tégla falazat Monolit födém mindkét szintenTerrán Danubia barna cserépfedés A telek teljes közműellátottsággal rendelkezik: villany, gáz ,víz, szennyvíz kábel TV. Az ingatlan jelenlegi állapota nagy szabadságot ad a belső terek kialakításában, így minden részlet a leendő tulajdonos elképzelései szerint valósítható meg. Ha egy kiváló elhelyezkedésű ingatlant keres, ahol saját elképzelései szerint alakíthatja ki álmai otthonát, akkor ez a lehetőség Önre vár. Hívjon ,nézzük meg együtt és tervezzük meg új otthonát! Jöjjön nézzük meg együtt ! 06209737207 Referencia szám: HZ075744
https://csaladihazak.hu/elado/csaladi-haz/mohacs/55-millio-ft;333-negyzetmeter;8-szoba;egyedi-futes/11614458