Az értékesítő:
Csombordi Csaba

Eladó családi ház Alsópáhok, 109 000 000 Ft, 268 négyzetméter

109 000 000 Ft
családi ház, 268 négyzetméter
Építőanyag:
Tégla
Egész szobák:
4
Komfort fokozat:
Összkomfort
Fűtés módja:
Villany
Ingatlan állapota:
Szerkezetkész
Azonosító:
11613168
Értékesítés típusa:
eladó
Ingatlan típusa:
családi ház
Jelleg:
Családi ház
Település:
Alsópáhok
Alapterület:
268
Telekterület:
872
Ár:
109 000 000 Ft
Szintek száma:
2 szint
Fűtés jellege:
Cirkó
Kor:
Új építésű
Terasz:
Van
Bútorozott:
Nem bútorozott
Telekterület típusa:
négyzetméter
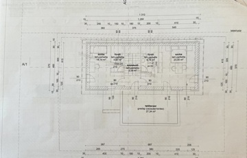
Modern stílusú okosotthon panorámával – Hévíz és a Balaton közelében Alsópáhok egyik csendes, panorámás részén, mindössze 5 km-re Hévíz városától és a Balaton közelségében eladó egy modern kialakítású, kétszintes családi ház okosotthon előkészítéssel. A nyugodt környezet és a szép kilátás ideálissá teszi állandó otthonnak és nyaralónak egyaránt. Az ingatlan jelenleg kb. 85%-os készültségi szinten áll, így az új tulajdonos saját igényei szerint választhatja ki a burkolatokat és fejezheti be a belső tereket. Főbb jellemzők: Telek mérete: 872 m² (belterület) Hasznos alapterület: 268 m² Elrendezés: 3 hálószoba, mindegyikhez saját fürdőszoba tágas nappali amerikai konyhával kamra és külön mosókonyha vendég WC 2 nagy terasz Műszaki tartalom: 30-as Porotherm falazat + 15 cm hőszigetelés Energiahatékony megoldások → alacsony fenntartási költségek Elektromos kazánról működő padlófűtés az egész házban 3 rétegű műanyag nyílászárók Elektromos alumínium redőnyök Riasztó- és napelem-előkészítés A tájolásnak köszönhetően a ház világos, kellemes életteret biztosít. Az ingatlan modern építészeti stílusban készült, átgondolt alaprajzzal és jól kihasználható terekkel. Kiváló választás családi otthonnak vagy befektetésnek egy népszerű, folyamatosan fejlődő térségben. Igény esetén a befejezéshez részletes költségbecslés biztosított. MEGBIZHATÓ INGATLAN - INGATLAN AZ ÉLET ÉS A MUNKA ÉRDEKÉBEN! MB26-174 További lakó- és kereskedelmi ingatlanokért tekintse meg weboldalunkat!
https://csaladihazak.hu/elado/csaladi-haz/alsopahok/109-millio-ft;268-negyzetmeter;4-szoba;cirko-futes/11613168