Az értékesítő:
Kovács Julianna
+36 70 329 0242

Eladó családi ház Monok, 29 900 000 Ft, 93 négyzetméter

29 900 000 Ft
családi ház, 93 négyzetméter
Építőanyag:
Tégla
Egész szobák:
3
Komfort fokozat:
Komfort
Fűtés módja:
Gáz
Ingatlan állapota:
Azonosító:
11609522
Értékesítés típusa:
eladó
Ingatlan típusa:
családi ház
Jelleg:
Családi ház
Település:
Monok
Alapterület:
93
Telekterület:
527
Ár:
29 900 000 Ft
Fűtés jellege:
Cirkó
Terasz:
Van
Erkély:
Van
Telekterület típusa:
négyzetméter
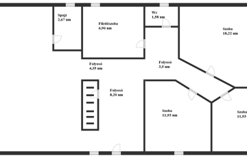
Monokon eladó egy keresztúri és szilikát blokkból épült, stabil szerkezetű, 93 nm hasznos alapterületű családi ház műanyag nyílászárókkal. Az ingatlan három különálló hálószobával és egy tágas nappalival rendelkezik, jól átgondolt, praktikus elrendezéssel. A szobák burkolata laminált padló, míg a többi helyiségben strapabíró csempeburkolat található. A ház frissen festett, rendezett állapotú, azonnal költözhető. Az épület alatt dupla garázs kapott helyet, külön bejárattal, valamint egy vizesblokkal és mosókonyha résszel, amely jelenleg befejezésre vár – ez további értéknövelő lehetőség, akár háztartási helyiségként, akár műhelyként vagy tárolóként hasznosítva. A 527 nm‑es telek könnyen karbantartható, ugyanakkor elegendő teret biztosít további fejlesztésekhez. A beépíthető tetőtér jelentős bővítési potenciált kínál, amely növeli az ingatlan hosszú távú értékét és hasznosíthatóságát. Csendes, rendezett környezetben található, így alkalmas állandó lakhatásra, de befektetési célra is kifejezetten jó választás a szerkezeti adottságok, a bővíthetőség és a többfunkciós alsó szint miatt. Helység lista: 1.Szoba: 18,22 nm 2.Szoba: 11,93 nm 3.szoba: 11,93 nm Közlekedő: 16,05 nm Wc: 1,58 nm Fürdő: 6,96 nm Kamra: 2,67 nm Konyha + Nappali + Étkező: 30,77 nm
https://csaladihazak.hu/elado/csaladi-haz/monok/30-millio-ft;93-negyzetmeter;3-szoba;cirko-futes/11609522