Az értékesítő:
Várszegi Tamás
+36 20 428 4477

Eladó családi ház Győr, 220 000 000 Ft, 200 négyzetméter

220 000 000 Ft
családi ház, 200 négyzetméter
Egész szobák:
3
Ingatlan állapota:
Azonosító:
11609227
Értékesítés típusa:
eladó
Ingatlan típusa:
családi ház
Jelleg:
Családi ház
Település:
Győr
Alapterület:
200
Telekterület:
830
Ár:
220 000 000 Ft
Fűtés jellege:
Cirkó
Kor:
Új építésű
Terasz:
Nincs
Erkély:
Nincs
Telekterület típusa:
négyzetméter
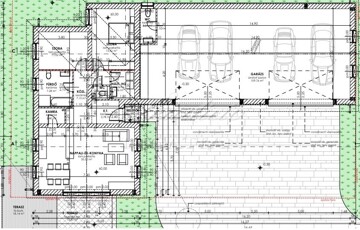
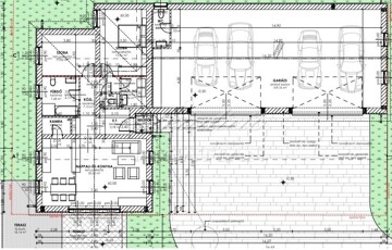
5 FÉRŐHELYES GARÁZS, TÉRKÖVES PARKOLÓK, IGÉNYES-, OKOS- INNOVATÍV KIVITELEZÉS, 8x4 M-ES UDVARI FŰTÖTT MEDENCE MOTOROS FEDÉSSEL, HŐSZIVATTYÚS ÉS FAN COIL HŰTÉS-FŰTÉS, NAPELEM, KAMERA RENDSZER, H TARIFÁS LEHETŐSÉG ÉS VÉGET NEM ÉRŐ ÉRTÉKES EXTRÁK, MINDEZ A FENNTARTHATÓSÁG, ÉSSZERŰSÉG, BIZTONSÁG ILL. KÉNYELEM JEGYÉBEN! LEGYEN ÖN AZ ELSŐ LAKÓJA ÉS ÉLVEZZE A KÖRNYÉK ÉS AZ ÚJ OTTHONA ELŐNYEIT! CSAK A TRADÍCIÓ INGATLAN KÍNÁLATÁBAN! Győr kedvelt kertvárosi részén Ménfőcsanakon, forgalom mentes új lakókörnyezetben, 830 m2-es nagyrészt térkövezett, széles utcafrontú intim telken 2025 -ben saját részre épült, még nem lakott, fokozottan hőszigetelt, rendkívül igényes kivitelezésű 91 /bruttó 200 / m2-es, nappali és két szobás, nagy teraszos családi ház, 110 m2-es 5 férőhelyes garázzsal, kerti medencével várja leendő tulajdonosát. Igény szerint plusz egy szoba vagy lakrész is kialakítható. A 91, 21 m2-es lakótér a következő helyiségekből áll: előtér 3,78 m2 / közlekedő 7,1 m2 / nappali-étkező-konyha 35,52 m2 / kamra 2,4 m2 / wc 1,4 m2 / háztartási helyiség 3,96 m2 / fürdő 7,28 m2 / szoba 11,02 m2 / szoba 15,51 m2 / zuhanyzó 3,24 m2 / továbbá fedett belépő 1, 56 m2 / terasz automata napellenzővel 32 m2 / GARÁZS 110 M2. Az épület 2025-ben készült el, mindvégig nagy odafigyeléssel és precizitással, modern technikai megoldásokkal és prémium anyaghasználattal. Energetikai besorolása A+ Pár fontos és értékes műszaki megoldás röviden: - Nívó gyártmányú alumínium utcafronti kerítés, Sommer gsm modulos kapumozgatóval - 3 oldalról épített falazatú kerítés - 38-as tégla falazat 12 cm grafitos szigeteléssel - Bramac mediterrán tetőhéjalás - betonfödém 30- ,az aljzatban 15 cm szigeteléssel - 26 db távirányítású világítótest az udvaron - egyedi gyártású fa nyílászárók 3 rétegű 44-es profilú üvegezéssel - Somfy motoros alumínium redőnyök telefonos applikásióval - 8x4 m-es épített sós vízű, automata működésű medence, 12 KW-os hőszivattyús fűtéssel, motoros fedéssel, fa szerkezetű gépészeti házzal, automata PH ellenőrző adagolóval és medencetöltéssel - 6 kamerás távfelügyeletes riasztórendszer - teraszvilágítás és motoros napellenző - parkosított udvar, automata öntözés locsolóórán keresztül - minőségi csempe és járólap ill. a szobákban tömör fa burkolatok - hidromasszázs sarokkád és zuhanyzó a fürdőszobában, plusz zuhanyzó a garázsban - 7,5 KW-os Huawei napelemrendszer - nappali 3x32 A, H -tarifa 3x25A ( téli-nyári időszak között átkapcsoló a hőszivattyú miatt, télen H-tarifás használat, nyáron Napelem rendszer ) - víz fő- és locsolómérő - 9 KW Energy Save hőszivattyús hűtés , fűtés, HMV, padló- és plafon hűtés -fűtés / automata működés - vízlágyító használata - a garázsban 3 db 3,3KW-os Revenso Fan-Coil, melyek hűtést és fűtést biztosítanak Ezen hirdetésben szereplő adatok részben a tulajdonos információi szerint kerültek rögzítésre. Győr-Ménfőcsanak az egyik legkedveltebb, folyamatosan fejlődő kertvárosi része Győr városának. A városrész különösen népszerű a családok és a befektetők körében, hiszen nyugodt, zöld környezetet kínál, miközben kiváló infrastruktúrával és gyors városi kapcsolatokkal rendelkezik. Az itt található ingatlanok értékállóak, stabil kereslet jellemzi őket, ezért hosszú távú befektetésnek is kifejezetten ajánlott terület. A városrész közlekedési szempontból kiváló adottságokkal rendelkezik. Autóval néhány perc alatt elérhető a belváros, valamint a M1-es autópálya, amely gyors összeköttetést biztosít Budapest, a nyugati országhatár és Bécs irányába. A Balaton is kényelmesen megközelíthető autóval. A városrészből kerékpárúton is könnyen elérhető Győr belvárosa, emellett vasúti megálló és rendszeres helyi buszjáratok biztosítják a gyors és kényelmes tömegközlekedést. Ménfőcsanak kiváló infrastruktúrával rendelkezik. A mindennapi élethez szükséges szolgáltatások szinte mind megtalálhatók a közelben: bölcsőde, óvoda, iskola, orvosi rendelő, gyógyszertár, posta, valamint több élelmiszerbolt és kisebb üzlet is. A nagyobb bevásárlóközpontok és áruházak szintén néhány perces autóúttal elérhetők. A környék biztonságos, családbarát hangulatú, sok zöldfelülettel és nyugodt utcákkal. A természet közelsége ideális a pihenéshez és az aktív kikapcsolódáshoz: sétautak, kerékpáros útvonalak, sportpályák és szabadtéri sportolási lehetőségek állnak rendelkezésre. A városrész kulturális és közösségi élete is élénk, rendszeresen szerveznek helyi rendezvényeket, közösségi programokat és sporteseményeket. Összességében Győr-Ménfőcsanak kiváló választás mindazok számára, akik nyugodt, kertvárosi környezetben szeretnének élni, ugyanakkor fontos számukra a városi infrastruktúra közelsége és a kiváló közlekedési kapcsolatok. Az itt található ingatlanok stabil értéket képviselnek, ezért lakhatásra és befektetésre egyaránt ideálisak. A TRADÍCIÓ INGATLANIRODA AZ ALÁBBI SZOLGÁLTATÁSOKKAL ÁLL AZ ÜGYFELEK RENDELKEZÉSÉRE: - LAKOSSÁGI ÉS IPARI INGATLANOK ÉRTÉKESÍTÉSE ÉS BÉRBEADÁSA - DÍJMENTES PÉNZÜGYI TANÁCSADÁS, HITELÜGYINTÉZÉS, LAKÁSHITELEK, ÁLLAMI TÁMOGATÁSOK / CSOK, ÁFA / , BABAVÁRÓ HITEL, SZEMÉLYI KÖLCSÖN, LAKÁSTAKARÉK, BIZTOSÍTÁS - JOGI HÁTTÉR, ADÁSVÉTELI SZERZŐDÉSEK KÉSZÍTÉSE KEDVEZŐ FELTÉTELEKKEL - ENERGETIKAI TANÚSÍTVÁNY KÉSZÍTÉSE - INGATLAN ÉRTÉKBECSLÉS AMENNYIBEN GYŐRI, ILL. GYŐR KÖRNYÉKI, ELADÓ VAGY KIADÓ INGATLANNAL RENDELKEZIK, KÉREM HÍVJON!
https://csaladihazak.hu/elado/csaladi-haz/gyor/220-millio-ft;200-negyzetmeter;3-szoba;cirko-futes/11609227