Az értékesítő:
Bálint Krisztián
+36 30 213 5102

Eladó családi ház Szeged, 114 900 000 Ft, 96 négyzetméter

114 900 000 Ft
családi ház, 96 négyzetméter
Építőanyag:
Tégla
Egész szobák:
4
Komfort fokozat:
Összkomfort
Ingatlan állapota:
Épülő
Azonosító:
11608620
Értékesítés típusa:
eladó
Ingatlan típusa:
családi ház
Jelleg:
Családi ház
Település:
Szeged
Alapterület:
96
Telekterület:
440
Ár:
114 900 000 Ft
Kor:
Új építésű
Telekterület típusa:
négyzetméter
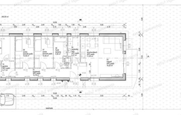
Legyen a szomszédom! – Az utolsó elérhető házak egyike a Liliom Lakópark főutcáján 13 éve élek a családommal a Liliom Lakóparkban. Nem térképről és nem prospektusból ismerem a környéket – hanem a mindennapokból. Ha szeretné, szívesen elmondom, milyen itt élni. Szegeden, a Liliom Lakóparkban, a Vinkler László utcában kínálom megvételre ezt az új építésű, önálló házat, amelynek ikerpárja is eladó! Főbb jellemzők: - 440 m² saját használatú telekrész (a teljes telek 700 m²) - A telek belső részén elhelyezkedő épület, a másik ház 12 m távolságra  - 96 m² hasznos alapterület - Nappali + 3 hálószoba - két fürdőszoba, az egyik tusolóval-, a másik fürdőkáddal felszerelve. - mindkét fürdőszobához tartozik WC - buszmegálló közvetlenül a ház előtt Műszaki tartalom – röviden: - kulcsrakész kivitelezés, átadás várhatóan 2027 nyara - tégla falazat, 10 cm vastag polisztirol hőszigetelés - alacsony rezsi a modern hőszivattyús fűtési rendszernek köszönhetően. - burkolatok-, ajtók-, szaniterek választhatók, igény szerint módosíthatók A négy egymás melletti telken összesen 8 új ház épül, ezek közül már csak a hirdetéseimben szereplő ingatlanok eladóak! A közelben épülő BYD szegedi autógyár miatt a környék nemcsak otthonként, hanem hosszabb távú befektetésként is értelmezhető. Ha kérdése van, vagy személyesen is megnézné a helyszínt, hívjon bizalommal.
https://csaladihazak.hu/elado/csaladi-haz/szeged/115-millio-ft;96-negyzetmeter;4-szoba;nincs-megadva-futes/11608620