Az értékesítő:
Szalay Zsuzsanna
+36 30 895 1781

Eladó családi ház Budakeszi, 244 000 000 Ft, 253 négyzetméter

244 000 000 Ft
családi ház, 253 négyzetméter
Építőanyag:
Tégla
Egész szobák:
5
Komfort fokozat:
Dupla komfort
Fűtés módja:
Gáz
Ingatlan állapota:
Azonosító:
11606651
Értékesítés típusa:
eladó
Ingatlan típusa:
családi ház
Jelleg:
Családi ház
Település:
Budakeszi
Alapterület:
253
Telekterület:
800
Ár:
244 000 000 Ft
Szintek száma:
2 szint
Fűtés jellege:
Cirkó
Kor:
21-50 éves
Terasz:
Van
Pince:
Van
Telekterület típusa:
négyzetméter
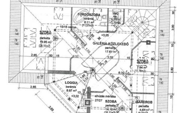
Budakeszi hegyvidéki részén, Makkosmárián, 880 nm-es, DNy-i tájolású, telken, három szintes, tágas tekkel rendelkező, galériás, 5+1 szobás, garázsos, 2000-ben épült családi ház eladó. A ház jól megközelíthető, aszfaltotzott utcában található, a városközponttól kb. 1 km-re. Elrendezés szintenként: Szuterén és pinceszint: kétállásos fűtött garázs (37 nm), szauna, tágas fitnessz-szoba (27 nm) és tároló Földszint: nappali amerikai konyhával (44 nm) és teraszkapcsolattal, dolgozószoba (26 nm) , fürdő (11 nm) , WC, háztartási helyiség Tetőtér: két háló (br. 28 és 18 nm), egy félszoba, gardeób, fürdő, külön WC, panorámás erkély Fűtése: gázkazán, padlófűtés és radiátorok, klíma, elektromos redőnyök, riasztó, automata öntözőrendszer, elektromos kapu. Korának megfelelő, jó műszaki állapotú ingatlan, rövid határidővel költözhető.
https://csaladihazak.hu/elado/csaladi-haz/budakeszi/244-millio-ft;253-negyzetmeter;6-szoba;cirko-futes/11606651