Az értékesítő:
Deák Andrea
+36 70 388 5986

Eladó családi ház Debrecen, 150 000 000 Ft, 150 négyzetméter

150 000 000 Ft
családi ház, 150 négyzetméter
Egész szobák:
5
Ingatlan állapota:
Kitűnő
Azonosító:
11606291
Értékesítés típusa:
eladó
Ingatlan típusa:
családi ház
Jelleg:
Ikerház
Település:
Debrecen
Alapterület:
150
Telekterület:
475
Ár:
150 000 000 Ft
Terasz:
Nincs
Erkély:
Van
Melléképület:
Nincs
Pince:
Nincs
Parketta:
Nincs
Kábel TV:
Nincs
Telekterület típusa:
négyzetméter
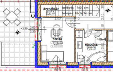
Modern ikerház eladó a Kerekestelepen! Debrecenben, a Kerekestelepen ÚJ ÉPÍTÉSŰ IKERHÁZ ELADÓ! Eladásra kínálunk Debrecen kedvelt részén, épülő, 149 m²-es, modern ikerházat 475 m²-es telekkel. A kivitelező megbízható, Debrecen környékén számos referenciával rendelkezik. Ingatlan típusa: ikerház Alapterület: telekméret 475 m2 lakóterület 149 m2 Szobák száma és elrendezés: Földszint: 68,9 m2 + garázs 18 m2: előszoba (9,42 m2) konyha-étkező-nappali (43,19 m2); kamra (2,16 m2), 1 szoba (10,8 m2), WC, zuhanyzó, garázs (18 m2) található. Terasz 26 m2 Emelet: (62,8 m2) 1.lakás: - szoba – gardrób (23,1 m2) – fürdőszoba (6,66 m2) – közlekedő (7,4 m2) -szoba (15,15 m2) – zuhanyzós WC (4,56 m2) -lépcsőház (5,9 m2) -erkély (8,5 m2) -emeleti terasz 49 m2 2.lakás: - szoba (12 m2) – fürdőszoba (7,69 m2) -szoba (11,4 m2) -szoba (15,81 m2) -közlekedő (10,98 m2) -lépcsőház (5,2 m2) -erkély (8,5 m2) -emeleti terasz 49 m2 Falazat: 30 cm-es N+F tégla Födém: kefni, monolit beton Külső hőszigetelés: 20 cm EPS hőszigetelés Nyílászárók: 90 mm 3 rétegű hőszigetelt üvegezéssel, elektromos garázskapu Emeleti födém szigetelés: 30 cm XPS hőszigetelés PVC lemezborítással Fűtés: hőszivattyús rendszer padlófűtéssel Hűtés: magasoldalfal FANCOIL i (vizesrendszerű klíma) Napelem: 5 kw Járda: épület körül 80 cm szélességben Utcai kerítés: lemez Állapot: új építés Irányár: 150 000 000 Ft Új, energiatakarékos, prémium minőségű otthon! Az átadás dátuma a szerződést követő 3 hónap . Ügyfeleinket teljes körűen segítjük a vásárlás és eladás teljes folyamatában megbízható, díjtalan és bankfüggetlen hiteltanácsadói és kiiváló ügyvédi háttérrel. További kérdéssel, megtekintéssel kapcsolatban várom hívását a hét bármelyik napján.!
https://csaladihazak.hu/elado/csaladi-haz/debrecen/150-millio-ft;150-negyzetmeter;5-szoba;nincs-megadva-futes/11606291