Az értékesítő:
Fodor Ágnes
+36 20 975 6132

Eladó családi ház Százhalombatta, 110 000 000 Ft, 88 négyzetméter

110 000 000 Ft
családi ház, 88 négyzetméter
Építőanyag:
Tégla
Egész szobák:
2
Komfort fokozat:
Összkomfort
Fűtés módja:
Hőszivattyú
Ingatlan állapota:
Épülő
Azonosító:
11606096
Értékesítés típusa:
eladó
Ingatlan típusa:
családi ház
Jelleg:
Ikerház
Település:
Százhalombatta
Alapterület:
88
Telekterület:
500
Ár:
110 000 000 Ft
Szintek száma:
Földszintes
Fűtés jellege:
Geotermikus
Kor:
Új építésű
Terasz:
Van
Pince:
Nincs
Telekterület típusa:
négyzetméter
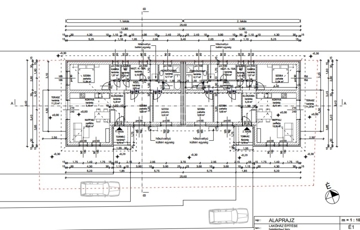
Százhalombatta családi házas övezetében, Dunafüreden kínálunk megvételre két lakóegységből álló ikerházat. A kivitelező cég számos százhalombattai referenciamunkával rendelkezik, aki több éve megbízhatóan, pontos határidőkkel végzi a kivitelezést ügyfelei legnagyobb megelégedésére. Az építkezés folyamatosan halad, várható befejezés: 2027 tavasz. Az ikerházi lakások társasházi alapító okirattal, külön helyrajzi számmal (albetétesítve) és külön mérőórákkal, saját kertrésszel kerülnek átadásra a leendő tulajdonosok részére. 1.lakás: bruttó 107 nm, nettó 80 nm + 11,25 nm terasz + 3,70 nm tornác telekterület: 300 nm szobaszám: 2 + 2 2.lakás: bruttó 107 nm, nettó 80 nm 11,25 nm terasz + 3,70 nm tornác telekterület: 450 nm szobaszám: 2 + 2 Az ár a befejezett, KULCSRAKÉSZ állapotra vonatkozik! Főbb műszaki paraméterek: - alap: vasalt, szigetelt beton sávalap - tartófalazat: 30-as Porotherm XTherm okostégla - válaszfalak: 10-es Ytong - szigetelés: homlokzat 15 cm dryvit, lábazat 10 cm xps - födém: a szerkezetű, 25 cm fújt cellulóz szigeteléssel - fűtés: Panasonic hőszivattyú (5 kW), padlófűtés hőleadással - melegvíz: hőszivattyúra kötött 200 literes HMV tartály - nyílászárók: fehér, három rétegű hő-és hangszigetelt, beépített redőnytokkal A belső ajtók 50.000 Ft/db, a hideg-és meleg burkolatok 4.000 Ft/nm-es árig a vevő által szabadon választhatóak. Az érdeklődők részére teljes műszaki és fotódokumentáció rendelkezésre áll, valamint már elkészült referencia házak is megtekinthetőek. Otthon Start, CSOK Plusz és piaci hitel igénybe vehető, melyben ingatlanirodánk BANKFÜGGETLEN hitelcentruma, DÍJMENTESEN áll érdeklődőink rendelkezésére. - Egyedi, bankfiókban nem elérhető kamat- és díjkedvezmények - Hitelképesség vizsgálat - Idő, energia és pénz megtakarítás - Teljes hivatali ügyintézés Ne maradjon le róla! További információkért és megtekintéssel kapcsolatban várom jelentkezését a hét minden napján. A hirdetésben szereplő adatok tájékoztató jellegűek, nem minősülnek ajánlattételnek.
https://csaladihazak.hu/elado/csaladi-haz/szazhalombatta/110-millio-ft;88-negyzetmeter;4-szoba;geotermikus-futes/11606096