Az értékesítő:
Nyegrutz Tibor
+36 30 250 4987

Eladó családi ház Budapest XXII. ker, 198 000 000 Ft, 180 négyzetméter

198 000 000 Ft
családi ház, 180 négyzetméter
Építőanyag:
Tégla
Egész szobák:
5
Komfort fokozat:
Dupla komfort
Fűtés módja:
Gáz
Ingatlan állapota:
Kitűnő
Azonosító:
11603337
Értékesítés típusa:
eladó
Ingatlan típusa:
családi ház
Jelleg:
Családi ház
Település:
Budapest XXII. ker
Alapterület:
180
Telekterület:
689
Ár:
198 000 000 Ft
Szintek száma:
1 szint
Fűtés jellege:
Cirkó
Kor:
1-5 éves
Terasz:
Nincs
Pince:
Nincs
Telekterület típusa:
négyzetméter
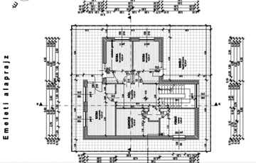
KÜLÖNLEGES AJÁNLAT, ÚJSZERŰ CSALÁDI HÁZ JÖJJÖN NÉZZE MEG ! TEGYEN AJÁNLATOT ! XXII. kerületben a Campona bevásárlóközpont közelében kínálunk eladásra egy 2023-ban épült 180 m2 hasznos alapterülettel rendelkező 5 szobás MODERN, ÚJ CSALÁDI HÁZAT. A KÉTSZINTES előkertes ingatlan két utcára nyíló 700 m2-es telken épült fel. A kertben egy autó számára található a külön álló könnyűszerkezetes, árammal ellátott 28 m2-es garázs. A telek mérete lehetőséget biztosít medence építésére is. HELYISÉGEI: A FÖLDSZINTEN nagyméretű, tágas nappali(55,87 m2) étkező- konyha(15,95 m2), kamra, dolgozószoba(16,8 m2) és egy fürdőszoba(7,2 m2) teszi kényelmessé a család életét. A földszinti terasz a bejáratnál közel 40 m2-es. AZ EMELETI SZINTET kényelmes lépcsőkön érjük el, ahol tágas előtér fogad, melyből külön nyílnak a napfényes hálószobák(10,90 m2, 10,90 m2, 14,60 m2) és egy gardrób szoba ami(10,2 m2). Ezen a szinten is van egy nagyméretű fürdőszoba( 9,30 m2). Az emelet érdekessége, hogy a szobákból méretes teraszra tudunk kimenni, ami körbe veszi az emeleti szintet, a mérete összesen 82 m2. A ház kertvárosias, zöldövezeti környezetben épült, 38-as téglából, vasbeton födémmel, cseréptetővel, 15 cm-es hőszigeteléssel. A műanyag nyílászárok elektromos redőnyökkel felszerelve lettek beépítve. A fűtést és meleg víz ellátást BOSCH kondenzációs kazán biztosítja, ahol kerámia burkolat van ott padlófűtés lett beépítve, ahol pedig laminált padló ott radiátorokkal oldották meg a hőleadást. Az épületbe riasztó kiépített. A lakóterekben összesen 4 db fűtő-hűtő klíma található. A bejárati kis kapuk és nagy kapuk mindkét utca fronton elektromosan nyithatók. A garázson kívül felszíni autóbeálló is kialakításra került a telken. HELYISÉGEK ELRENDEZÉSÉT LÁSD AZ ALAPRAJZOKON ! Az INGATLAN PER ÉS TEHERMENTES, egy tulajdonosa van ! IRÁNYÁRA: 198 millió Ft Az ingatlan elhelyezkedésének köszönhetően séta távolságra vannak a bevásárlási lehetőségek ALDI, LIDL, CAMPONA, TESCO, stb. Jó a tömegközlekedés, több buszjárattal elérhető a Móricz Zsigmond körtér, Kelenföld, a 4-es METRO, a belváros. Közelben található, óvoda, iskola, gyógyszertár, posta, stb. AJÁNLOM azoknak, akik egy kényelmes, korszerű, élhető kertvárosi CSALÁDI OTTHONRA vágynak. Amennyiben felkeltettem érdeklődését, kérdéseivel kapcsolatosan VÁROM JELENTKEZÉSÉT ! Forduljon hozzám bizalommal ! (G.I.)
https://csaladihazak.hu/elado/csaladi-haz/budapest-xxii-ker/198-millio-ft;180-negyzetmeter;5-szoba;cirko-futes/11603337