Az értékesítő:
Egri Attila
+36 30 442 1415

Eladó családi ház Szentendre, 74 900 000 Ft, 100 négyzetméter

74 900 000 Ft
családi ház, 100 négyzetméter
Építőanyag:
Tégla
Egész szobák:
5
Komfort fokozat:
Összkomfort
Fűtés módja:
Villany
Ingatlan állapota:
Átlagos
Azonosító:
11601299
Értékesítés típusa:
eladó
Ingatlan típusa:
családi ház
Jelleg:
Családi ház
Település:
Szentendre
Alapterület:
100
Telekterület:
833
Ár:
74 900 000 Ft
Szintek száma:
1 szint
Fűtés jellege:
Villany
Kor:
21-50 éves
Terasz:
Van
Pince:
Nincs
Telekterület típusa:
négyzetméter
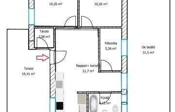
Szentendre kedvelt hegyvidéki környezetében, Tyúkosdűlő csendes aszfaltozott, mellékutcájában, ÜH/1 övezeti besorolású, 883 nm-es, telken, 1950-ben 30 cm-es téglából épült, 50 nm-es lakóterületű, 2 szobás, lapostetős, monolit betonfödémes, 3 rétegű nyílászárókkal szerelt lakóház eladó. A már meglévő épületre egy 50 nm-es, lakóterületű, 3 szobás könnyűszerkezetes, 10 cm-es külső hőszigeteléssel ellátott, összkomfortos faház került elhelyezésre, amihez egy dunai örökpanorámás 25 nm-es terasz kapcsolódik. Az épületegyüttes kiváló elosztású, napos-világos fekvésű, elektromos fűtésű, alsó része építés alatt álló a felső részét tekintve lakható, átlagos állapotú. Igény esetén a faház elbontását követően a két szint összeköthető, és akár tégla falazattal épített felső szint kialakítható. Az ingatlan tehermentes rugalmasan birokba vehető! Ajánljuk mindazoknak, akik egy kellemes hangulatú, emberléptékű házban szeretnének lakni, távol a város nyüzsgő forgatagától, tiszta levegőre, nyugalomra vágynak, de mégis Budapest vonzáskörzetében maradnának. Ezt a házat érdemes megnézni! További részletekért várom megtisztelő hívását. EA
https://csaladihazak.hu/elado/csaladi-haz/szentendre/75-millio-ft;100-negyzetmeter;5-szoba;villany-futes/11601299