Az értékesítő:
Hohl József
+36 30 608 6857

Eladó családi ház Bocfölde, 139 000 000 Ft, 216 négyzetméter

139 000 000 Ft
családi ház, 216 négyzetméter
Építőanyag:
Tégla
Egész szobák:
3
Ingatlan állapota:
Kitűnő
Azonosító:
11600847
Értékesítés típusa:
eladó
Ingatlan típusa:
családi ház
Jelleg:
Családi ház
Település:
Bocfölde
Alapterület:
216
Telekterület:
2275
Ár:
139 000 000 Ft
Fűtés jellege:
Hőszivattyú
Terasz:
Van
Erkély:
Nincs
Beépíthető tetőtér:
Nincs
Melléképület:
Nincs
Pince:
Nincs
Klíma:
Nincs
Telekterület típusa:
négyzetméter
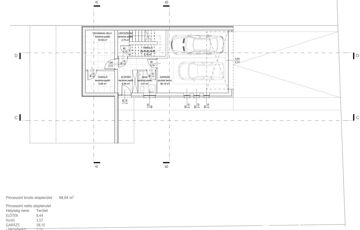
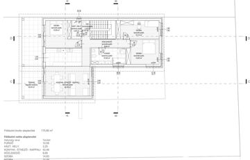
Zalaegerszegtől pár percre, csendes kis településen, Bocföldén, új építésű családi ház várja tulajdonosát. Az ingatlan építése még folyamatban van, így akár igény szerint is alakítható, ha időben megállapodik a kivitelezővel. A ház egy 2275m2-es telken kerül megépítésre, beton alappal, 30-as Porotherm téglával, beton födémmel, antracit tetőcseréppel. Az épület 2 szinttel rendelkezik. Alsó szinten kialakításra került, egy 38 m²-es dupla garázs, előtér, fürdő, két tároló, valamint a hőszivattyús fűtési és meleg víz ellátást biztosító gépészeti helyiség. Felső szint: amerikai konyhás étkezős nappali, három hálószoba, egy fürdő, egy háztartási helyiség, valamint egy külön mellékhelység. A nappaliból egy 32 m²-es teraszra léphetünk ki. (Mindezen helységek még variálhatók) A ház melegét egy modern hőszívatyus rendszer, padlófűtéssel fogja szolgáltatni. Az épület szigeteléséről 20cm homlokzati szigetelés és a 3 rétegű műanyag profilszerkezetű nyílászárok fognak gondoskodni. Ha Ön szeretne egy jó elosztású modern belső térrel rendelkező, új családi házat közvetlen Zalaegerszeg szomszédságában, panorámás kilátással, csendes utcában, akkor ez az ingatlan kiváló választás lehet. (További képekért és információkért kérem hívjon!)
https://csaladihazak.hu/elado/csaladi-haz/bocfolde/139-millio-ft;216-negyzetmeter;3-szoba;hoszivattyu-futes/11600847