Az értékesítő:
Nemes Edit
+36 70 716 9906

Eladó családi ház Debrecen, 229 000 000 Ft, 218 négyzetméter

229 000 000 Ft
családi ház, 218 négyzetméter
Egész szobák:
6
Ingatlan állapota:
Kitűnő
Azonosító:
11600215
Értékesítés típusa:
eladó
Ingatlan típusa:
családi ház
Jelleg:
Családi ház
Település:
Debrecen
Alapterület:
218
Telekterület:
1066
Ár:
229 000 000 Ft
Fűtés jellege:
Cirkó
Terasz:
Nincs
Erkély:
Van
Melléképület:
Nincs
Pince:
Nincs
Parketta:
Nincs
Kábel TV:
Nincs
Telekterület típusa:
négyzetméter
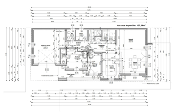
Az ingatlan, amit most bemutatunk, tökéletes választás családosok számára, akik egy új, modern otthonra vágynak Debrecen egyik legkeresettebb városrészében, Biharikertben. A projekt kezdete 2026.Április Befejezése: 2027.Március Az ingatlan alapterülete 218 nm, ami bőséges teret biztosít a családi élethez, és a 1066 nm-es telek lehetőséget ad a szabadidő eltöltésére, kertészkedésre, vagy akár egy medence kialakítására is. Az ingatlan kiváló állapotban van, így azonnal költözhető, ráadásul minimalista kialakítása miatt könnyen személyre szabható. A házban összesen 6 szoba található, ami elegendő teret biztosít a család minden tagjának. A tágas nappali és az amerikai konyha ideális helyszínt nyújt a közös családi étkezésekhez és baráti összejövetelekhez. A három fürdőszoba pedig garantálja, hogy sosem kell a reggeli rohanásban várakozni. A 19.62 nm-es terasz tökéletes helyszín a pihenésre, ahol a naplementében gyönyörködhetünk, miközben a gyerekek a kertben játszanak. A környék ellátottsága kiváló, hiszen számos bolt, iskola és óvoda található a közelben, így a mindennapi ügyintézés gyerekjáték. A csendes utcák és a barátságos szomszédság ideális környezetet biztosítanak a családi élethez. A közlekedés is remek, hiszen a város központja könnyen elérhető autóval és tömegközlekedéssel egyaránt. A Debreceni Egyetem és a helyi munkahelyek is gyorsan megközelíthetők, így nemcsak otthon, hanem munkahely szempontjából is remek választás. A garázsban két autó parkolására van lehetőség, ami különösen fontos lehet a családosok számára. Ez az ingatlan nem csupán egy ház, hanem egy igazi otthon, ahol a családi értékek és a közös pillanatok kapják a főszerepet. Ha bármilyen kérdésed van, vagy szeretnéd megtekinteni ezt a csodás ingatlant, bátran keresd fel csapatunkat! Mi itt vagyunk, hogy segítsünk neked megtalálni a tökéletes otthont!
https://csaladihazak.hu/elado/csaladi-haz/debrecen/229-millio-ft;218-negyzetmeter;6-szoba;cirko-futes/11600215