Az értékesítő:
Szilágyi Krisztina
+36 20 509 2022

Eladó családi ház Hatvan, 125 000 000 Ft, 195 négyzetméter

125 000 000 Ft
családi ház, 195 négyzetméter
Építőanyag:
Tégla
Egész szobák:
5
Komfort fokozat:
Összkomfort
Ingatlan állapota:
Újszerű
Azonosító:
11599223
Értékesítés típusa:
eladó
Ingatlan típusa:
családi ház
Jelleg:
Családi ház
Település:
Hatvan
Alapterület:
195
Telekterület:
731
Ár:
125 000 000 Ft
Fűtés jellege:
Cirkó
Erkély:
Van
Bútorozott:
Részben bútorozott
Telekterület típusa:
négyzetméter
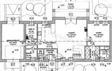
<p><strong>CasaNetWork Ingatlaniroda kínálatában eladó családi ház Hatvan belvárosában. A környék egy fiatalos lakópark, ahol csendes, forgalomtól mentes utcában található az ingatlan.  Otthon Start hitel, CSOK és a hozzá kapcsolódó kedvezmények igényelhetők!</strong></p><p>A fiatalos lakóparkban található ingatlan csendes, forgalomtól mentes utcában helyezkedik el. A vásárlók számára elérhető az Otthon Start hitel, a CSOK és az ezekhez kapcsolódó kedvezmények.</p><p>Kiváló választás lehet családok számára, hiszen a nappali mellett 5 külön szoba biztosítja, hogy mindenkinek jusson saját tér. A tágas, napfényes 45 m²-es terasz a közös pihenést, míg a kellemes méretű kert a szabadidő eltöltését teszi igazán élvezetessé.</p><p>A téglaépítésű ház teljes tetőtere beépítésre került. A szülői hálóhoz saját fürdőszoba tartozik, ezen felül külön vendégmosdó és az emeleten egy sarokkádas, hangulatos fürdő is megtalálható.</p><p>Az ingatlan számos kényelmi és biztonsági funkcióval felszerelt: 3 darab hűtő-fűtő klíma, elektromos garázskapu, riasztórendszer, biztonsági kamerák és szobánkénti internetkábelezés áll rendelkezésre. A szigetelés, a korszerű nyílászárók és a kondenzációs gázkazán gazdaságos fenntarthatóságot biztosítanak.</p><p>Az autó parkolása a garázsban megoldott, a tárolásra gardróbszobák és kerti tárolók szolgálnak. Külön vízóra méri a locsolási vízfogyasztást, így kedvezményes díjon oldható meg a kert gondozása.</p><p>Az ingatlan tehermentes, tulajdonjogi helyzete rendezett. Jöjjön el, nézze meg személyesen, és tegyen ajánlatot, ha el tudja képzelni családjának ezt a barátságos otthont!</p><p><strong></strong></p><p>Ügyfeleinknek díjmentes hiteltanácsadást, ügyvédi hátteret és rugalmas időpont-egyeztetést biztosítunk.</p><p><strong>CasaNetWork – Ingatlanban otthon vagyunk.</strong></p>
https://csaladihazak.hu/elado/csaladi-haz/hatvan/125-millio-ft;195-negyzetmeter;6-szoba;cirko-futes/11599223