Az értékesítő:
Tec 17 Ingatlan Kft.
+36 70 504 8744

Eladó családi ház Gödöllő, 137 900 000 Ft, 150 négyzetméter

137 900 000 Ft
családi ház, 150 négyzetméter
Egész szobák:
4
Ingatlan állapota:
Épülő
Azonosító:
11592147
Értékesítés típusa:
eladó
Ingatlan típusa:
családi ház
Jelleg:
Családi ház
Település:
Gödöllő
Alapterület:
150
Telekterület:
1298
Ár:
137 900 000 Ft
Fűtés jellege:
Egyéb
Telekterület típusa:
négyzetméter
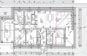
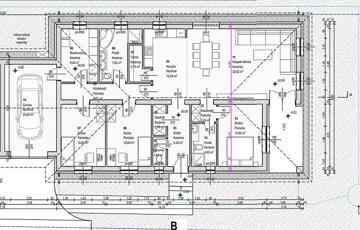
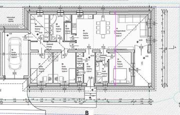
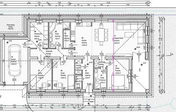
GÖDÖLLŐN, ALVÉG VÁROSRÉSZEN ELADÓ EGY ÚJ ÉPÍTÉSŰ, FÖLDSZINTES, NETTÓ 150 NM-ES IKERHÁZFÉL, 1298 NM-ES TELEKKEL ÉS 1 ÁLLÁSOS GARÁZZSAL. Az ingatlan 2026 júniusában kerül kulcsrakész állapotba. Az épület társasházzá lesz nyilvánítva. Főbb jellemzők: Alapterület: nettó 150 m² Telekméret: 1298 m² Építési éve: 2026 (új építésű) Falazat: 30 cm Porotherm tégla Válaszfalak: 10 cm Porotherm Szigetelés: 15 cm grafitos dryvit a homlokzaton, aljzatban 10 cm szigetelés Tető: Bramac cserép, tetőtérben 25 cm üveggyapot hőszigetelés Fűtés: Energiahatékony hőszivattyús rendszer Stabil, 100 cm mély beton alap Parkolás: Saját 1 állásos garázs Az ár tartalmazza: Beltéri ajtók: 60.000 Ft/db, Beltéri hidegburkolatok: 6.500 Ft/ m², Beltéri melegburkolatok: 6.000 Ft/ m², Kültéri burkolatok: terasz 6,500 Ft/ m², Szaniterek: Kád: 60.000 Ft/db, Kádtöltő: 25.000 Ft/db, Zuhany csaptelep: 25.000 Ft/db, Mosdó csaptelep: 15.000 Ft/db, Standardmosdó: 20.000 Ft/db, Wc + tartály: 35.000 Ft. Elrendezés: Földszint: amerikai konyhás nappali, 3 szoba, zuhanyzós fürdőszoba + mellékhelyiség, kádas fürdőszoba + mellékhelyiség, mosókonyha, garázs, kamra, terasz. Környék: A környék jól ellátott helyi és agglomerációs tömegközlekedéssel, ami kényelmes eljutást biztosít mind Gödöllő belvárosába, mind Budapest irányába. A H8 HÉV/ Gödöllő felől közvetlen kapcsolatot biztosít Budapest Örs vezér tere metróállomással, ahol a 2-es metróhoz lehet átszállni. Gödöllő városán belül több helyi buszjárat közlekedik, amelyek összekötik a városrészeket, így Alvéget is a vasútállomással és a város központjával. A buszmegállók gyalogosan néhány perc alatt elérhetők a környéken. Közelben számos bevásárlási lehetőség, gyógyszertár, bölcsőde, óvoda, iskola, játszótér található. Finanszírozás: Az ingatlan banki finanszírozással is megvásárolható, melyben irodánk ingyenes tanácsadással áll rendelkezésükre! Irányár: 137,9 M Ft. VEVŐINK RÉSZÉRE A KÖZVETÍTÉS DÍJTALAN A hirdetésben szereplő adatok tájékoztató jellegűek.
https://csaladihazak.hu/elado/csaladi-haz/godollo/138-millio-ft;150-negyzetmeter;4-szoba;egyeb-futes/11592147