Az értékesítő:
Kovács Julianna
+36 70 329 0242

Eladó családi ház Bodrogkeresztúr, 120 000 000 Ft, 158 négyzetméter

120 000 000 Ft
családi ház, 158 négyzetméter
Építőanyag:
Tégla
Egész szobák:
3
Komfort fokozat:
Összkomfort
Fűtés módja:
Gáz
Ingatlan állapota:
Azonosító:
11591736
Értékesítés típusa:
eladó
Ingatlan típusa:
családi ház
Jelleg:
Családi ház
Település:
Bodrogkeresztúr
Alapterület:
158
Telekterület:
1900
Ár:
120 000 000 Ft
Fűtés jellege:
Egyéb
Terasz:
Van
Erkély:
Nincs
Telekterület típusa:
négyzetméter
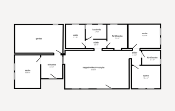
Eladó egy modern, esztétikus családi ház Tokaj környékének egyik leghangulatosabb részén. A 2024-ben épült, kifinomult megjelenésű ingatlan már megkapta a lakhatási engedélyt, és kellemes krémszínű homlokzatával harmonikusan illeszkedik a természetes környezethez. A 159 m²-es, világos és tágas lakótér időtálló eleganciát és otthonos hangulatot áraszt. A hozzá tartozó 1900 m²-es, parkosítható telek pihenésre és kültéri kikapcsolódásra egyaránt kiváló. Főbb jellemzők: • 3 kényelmes, napfényes hálószoba • 2 stílusos, jól felszerelt fürdőszoba • Gázkazánnal működő padlófűtés az egész házban • Fűtött garázs közvetlen lakótérkapcsolattal • Küszöbmentes, akadálymentes kialakítás • Kelet–nyugati fekvés – egész nap világos • Elegáns, fa hatású műanyag nyílászárók • Porotherm falazat, Bramac tető, 10 cm-es szigetelés • Modern kerítés, a telek teljesen körbekerített • Virtuális séta elérhető: Matterport link Ez az ingatlan nem csupán egy épület — ez egy kiegyensúlyozott, békés élettér, ahol a minőség, stílus és funkcionalitás kéz a kézben jár. Ritka alkalom ilyen szinten felszerelt új építésű otthonra Tokaj vonzáskörzetében!
https://csaladihazak.hu/elado/csaladi-haz/bodrogkeresztur/120-millio-ft;158-negyzetmeter;3-szoba;egyeb-futes/11591736