Az értékesítő:
Szabolcsi Zoltán
+36 70 256 0693

Eladó családi ház Nyíregyháza, 72 000 000 Ft, 91 négyzetméter

72 000 000 Ft
családi ház, 91 négyzetméter
Építőanyag:
Tégla
Egész szobák:
3
Ingatlan állapota:
Épülő
Azonosító:
11590612
Értékesítés típusa:
eladó
Ingatlan típusa:
családi ház
Jelleg:
Családi ház
Település:
Nyíregyháza
Alapterület:
91
Telekterület:
430
Ár:
72 000 000 Ft
Fűtés jellege:
Geotermikus
Kor:
1-5 éves
Telekterület típusa:
négyzetméter
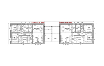
Nyíregyháza Metró áruház vonzásában ÚJ ÉPÍTÉSŰ, 18nm-es fedett autóbeálló mentén összeépült, 91 nm-es, 3 szoba + nappali étkező konyhával, külön fürdő és wc, mosókonyha. választható járólap és laminált parketta burkolattal, 3 réteg üvegezésű műanyag nyílászárókkal, hőszivattyús padló fűtéssel, téglaépítésű 15 cm-es homlokzati, 25 cm födémszigeteléssel ellátott ikerház, 430 nm-es telken, 2026 nyári átadással eladóak. Energetikai besorolás A+Az ingatlan azonosítója: 98745Érdeklődni: +36702560693 Az ingatlan azonosítója: 98745 Érdeklődni: +36702560693
https://csaladihazak.hu/elado/csaladi-haz/nyiregyhaza/72-millio-ft;91-negyzetmeter;3-szoba;geotermikus-futes/11590612