Az értékesítő:
Szabolcsi Zoltán
+36 70 256 0693

Eladó családi ház Nyíregyháza, 79 900 000 Ft, 124 négyzetméter

79 900 000 Ft
családi ház, 124 négyzetméter
Építőanyag:
Tégla
Egész szobák:
3
Ingatlan állapota:
Épülő
Azonosító:
11590510
Értékesítés típusa:
eladó
Ingatlan típusa:
családi ház
Jelleg:
Családi ház
Település:
Nyíregyháza
Alapterület:
124
Telekterület:
836
Ár:
79 900 000 Ft
Fűtés jellege:
Cirkó
Kor:
1-5 éves
Telekterület típusa:
négyzetméter
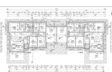
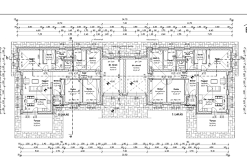
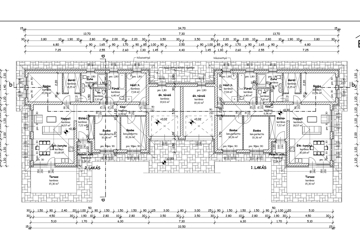
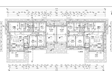
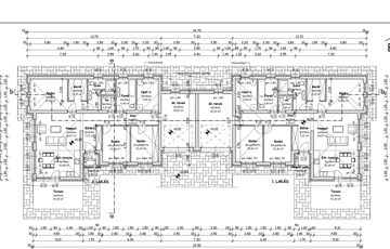
Nyíregyháza Metró áruház vonzásában, ÚJ ÉPÍTÉSŰ, 124 nm-es, 3 szoba + tágas nappali étkező konyhával, 16 nm-es teraszkapcsolattal, 1 fürdő zuhanyzó és fürdőkáddal, 2 wc-vel,  mosókonyha, gardróbszoba és kazánház, választható járólap és laminált parketta burkolattal, egyedi gáz padló fűtéssel kondenzációs kazánnal, 3 db inverteres hűtő-fűtő klímával, 3 réteg üvegezésű antracit műanyag nyílászárókkal, 15 cm homlokzati, 30 cm födém 10 cm lépésálló szigeteléssel, 19,5 nm-es Hörmann automata kapuval ellátott garázzsal, részben térburkolva és épített kerítéssel ikerház, 836 nm-es telken eladó. Kulcsátadás 2026 tavasza. Energetikai besorolás A+Az ingatlan azonosítója: 97661Érdeklődni: +36702560693 Az ingatlan azonosítója: 97661 Érdeklődni: +36702560693
https://csaladihazak.hu/elado/csaladi-haz/nyiregyhaza/80-millio-ft;124-negyzetmeter;3-szoba;cirko-futes/11590510