Az értékesítő:
Rácz Mariann
+36 30 275 3713

Eladó családi ház Szeged, 144 000 000 Ft, 190 négyzetméter

144 000 000 Ft
családi ház, 190 négyzetméter
Építőanyag:
Tégla
Egész szobák:
2
Fűtés módja:
Gáz
Ingatlan állapota:
Épülő
Azonosító:
11588393
Értékesítés típusa:
eladó
Ingatlan típusa:
családi ház
Jelleg:
Ikerház
Település:
Szeged
Alapterület:
190
Telekterület:
452
Ár:
144 000 000 Ft
Szintek száma:
Földszintes
Fűtés jellege:
Cirkó
Kor:
Új építésű
Telekterület típusa:
négyzetméter
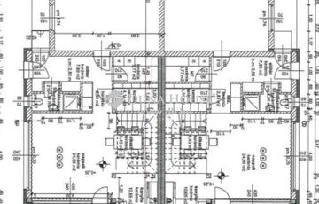
EXKLUZÍV KÖRNYEZET, MINIMÁL STÍLUS!Újszeged dinamikusan fejlődő, kedvelt kertvárosi övezetében EMELT SZINTŰ SZERKEZETKÉSZ, belső kétszintes, saját kertkapcsolatos, prémium kategóriájú, minimál stílusú, család ház jellegű ikerház egyik fele eladó.Az ingatlan korszerű technológiával, műszaki tartalommal épült. Kivitelezését az igényesség és a modern stílus jellemzi.Az ikerház egymással érintkező falfelülete külön fallal rendelkezik, közte dupla szigeteléssel. Az épület kertre néző 452 m2-es telken épült, ahol amerikai konyha+nappali, 4 szoba, gardrób szoba, tágas, fedett terasz, erkély és dupla garázs kerül kialakításra.A lépcsőház felett felülvilágító kupola (lapostető) gondoskodik a természetes megvilágításról.Térfelosztása az alábbi:Földszint: amerikai konyha+nappali, innen nyílik a terasz, kamra, háztartási helyiség, fürdő, közlekedő, előtér, garázs (lakótér - 65,72 m2, fedett terasz 23,58 m2, garázs 36,68 m2).Emelet: 4 szoba, gardrób, fürdő, wc, közlekedő, erkély ( lakótér - 71,17 m2, erkély 9,97 m2).Össz terület: 153,655 m2 (1/2-1/2 terasz és erkély) + 36,68 m2 garázs = 190,335 m2.Műszaki jellemzők- Falazáshoz felhasznált anyagok: Wienerberger Porotherm X-Therm okostégla, gipszes vakolat- Két rétegben glettelt és festett falak- 22 cm-es monolit vasbeton födém ( záró szintes is)- Homlokzati nyílászárók: 76 mm-es, 6 kamrás, antracit színű (belső oldalán fehér) műanyag nyílászárók 3 rétegű üvegezéssel (üveg: U 0,6 W/m2K)- Homlokzatburkolat: 15 cm-es EPS homlokzati hőszigetelés 1,5 mm-es fehér műgyantás nemesvakolat ill. Travertin mészkő burkolattal- Travertin mészkő burkolat, mészkő könyöklő- Üvegkorlát: két rétegű, edzett üvegkorlát a teraszon és az emeleti nyílászárókon (franciaerkélyeken)- Kamera -és riasztórendszer kiépítése (3 db kamera és mozgásérzékelő rendszer)- Video kaputelefon, TV internet előkészítés- Elektromos rendszer: elektromos vezetékek védőcsövekben, Split klíma előszerelése a nappaliban és az emeleti hálószobában, elektromos redőny előkészítés.- Fűtésrendszer: 24 kW-os tározós, kondenzációs gázkazán, melegvíz cirkulációs vezeték, padlófűtés minden helyiségben (kivéve kamrában). Fürdőszobában törölköző szárító radiátor. Gázterv engedélyeztetés.- Napelem: 5 kW-os napelem rendszer (várható éves termelés: 5.140 kWh, kiváltott havi áramszála összege: 16.277,- Ft)- Garázs: kétállásos, padlófűtéssel és vízvételi lehetőséggel ellátott garázs- Garázskapu: elektromos, hőszigetelt Hörmann RenoMatic Planar garázskapu 40 mm PIR hőszigeteléssel, matt Delux antracit színű borítással, (RAL 7016), ugrókódos rádiós rendszer, BluetoothMinőségi anyagok, minőségi kivitelezés.Ajánlom azoknak, akik elegáns, modern álomotthont szeretnének ahol minden a magas színvonalat és letisztultságot sugározza.Ha felkeltette érdeklődését bővebb információért forduljon hozzám, keressen a hét bármely napján bizalommal!VÁSÁROLJON SZAKÉRTŐN KERESZTÜL!
https://csaladihazak.hu/elado/csaladi-haz/szeged/144-millio-ft;190-negyzetmeter;5-szoba;cirko-futes/11588393