Az értékesítő:
Edvi Zsuzsanna
+36 20 277 7237

Eladó családi ház Nyúl, 75 000 000 Ft, 142 négyzetméter

75 000 000 Ft
családi ház, 142 négyzetméter
Egész szobák:
5
Ingatlan állapota:
Azonosító:
11588070
Értékesítés típusa:
eladó
Ingatlan típusa:
családi ház
Jelleg:
Családi ház
Település:
Nyúl
Alapterület:
142
Telekterület:
1021
Ár:
75 000 000 Ft
Fűtés jellege:
Cirkó
Terasz:
Nincs
Erkély:
Van
Telekterület típusa:
négyzetméter
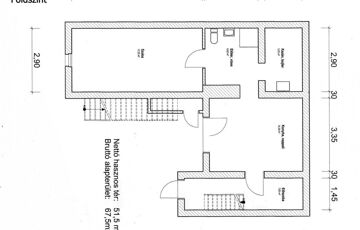
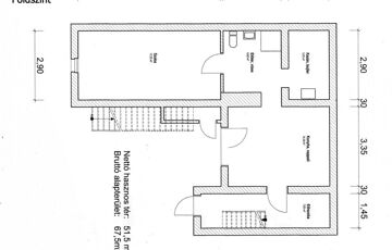
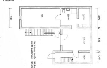
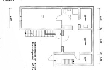
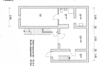
Akár 2 külön bejáratú lakásként is használható családi ház Nyúl könnyen megközelíthető részén eladó egy rövid időn belül költözhető, családi ház, amely akár 2 generációs otthonként is nagyon jó választás. A ház egy 37 m széles utcafrontú, 1021 m2-es telken található. A telken külön elkerített részen található a gondozott veteményes, a gyümölcsös és szőlő. A ház középen helyezkedik el. FÖLDSZINT ( 51,5 m2) helyiségei: 14,39 m2 Konyha-nappali, 6,82 m2 fürdőszoba, egy 17,26 m2-es szoba, 5,05 m2 kazánház. A földszintről a lakáson belülről egy előszobából is vezet lépcső az emeletre. Kívül az udvaron egy terasz. EMELET helyiségei (90,23 m2) : 4 szoba ( 13,45 m2, 12,35 m2, 21,15 m2, 12,75 m2) fürdőszoba, előszoba 12,35, konyha 3,38, előszoba 8,25 m2, előtér 8,25 m2, dolgozó szoba. Az emeleten található egy fedett terasz. Az udvaron található még 2 garázs ( egyik fűtött), 2 tároló, műhely és tégla építésű, szabad kéményű kemence. Az eredeti ház 1965-ben épült, melyhez 1974-ben építették hozzá a szuterén és az emelet nappali részét, a feljárót. 2003-ban felújítva az alsó szint. 2015-ben nyílászárócsere. MŰSZAKI TARTALOM: - falazat magasított kevéslyukú tégla - Födémek egy része vasbeton lemezfödém, a szuterén és a földszint között téglabetétes, fémgerendás, hőszigetelt födém - tetőfedés csaphornyos csornai cseréppel - 2 rétegű üveggel ellátott korszerű műanyag ablakok redőnnyel - Fűtés kombi gázkazánnal, hőleadók lapradiátorok - meleg vjz villanybojlerrel, Vezérelt áramos villanyórával. Nagyobb igény esetén a gázkazán is rá tud segíteni - 3 kémény az ingatlannál - réz villanyvezetékek, alumínium a garázsban - a hozzáépített rész szigetelt - kiépített csapadékvíz elvezető rendszer - szuterén szennyvízelvezetése ( mosdó, zuhanyzó, mosógép) szikkasztós derítőbe történik A telken kiépítésre került egy 76 m mély fúrt kút, amely 8 m mélységig rézcsővel ellátott, házi vízellátórendszer kiépítésére alkalmas, bevizsgált ivóvíz minőség. Van még egy 15 m mély, betongyűrűs ásott kút is, amelyből szivattyú segítségével lehet öntözni. A ház könnyen megközelíthető, aszfaltozott utcában található, ahol a közelben buszmegálló is van. Kinek ajánlom? Mindazoknak, akik Győr dinamikusan fejlődő agglomerációjában, kiváló infrastruktúrájú és családbarát településen keresnek igényes otthont. Alkalmas többgenerációs otthonnak, vagy vállalkozásra is. 3%-os START HITELRE IS megvásárolható! Amennyiben hitelre van szüksége ingyenes, bankfüggetlen tanácsadással és teljes körű ügyintézéssel állunk rendelkezésére. Minden családtámogatási kedvezmény igénybe vehető! DÍJMENTES HITELÜGYINTÉZÉS! Várom hívását a hét minden napján! 20/2777237
https://csaladihazak.hu/elado/csaladi-haz/nyul/75-millio-ft;142-negyzetmeter;5-szoba;cirko-futes/11588070