Az értékesítő:
Nyegrutz Tibor
+36 30 250 4987

Eladó családi ház Budapest XXII. ker, 168 000 000 Ft, 130 négyzetméter

168 000 000 Ft
családi ház, 130 négyzetméter
Építőanyag:
Tégla
Egész szobák:
5
Komfort fokozat:
Összkomfort
Fűtés módja:
Hőszivattyú
Ingatlan állapota:
Kitűnő
Azonosító:
11587759
Értékesítés típusa:
eladó
Ingatlan típusa:
családi ház
Jelleg:
Ikerház
Település:
Budapest XXII. ker
Alapterület:
130
Telekterület:
500
Ár:
168 000 000 Ft
Szintek száma:
1 szint
Fűtés jellege:
Geotermikus
Kor:
Új építésű
Terasz:
Van
Pince:
Nincs
Telekterület típusa:
négyzetméter
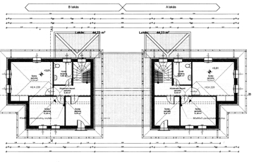
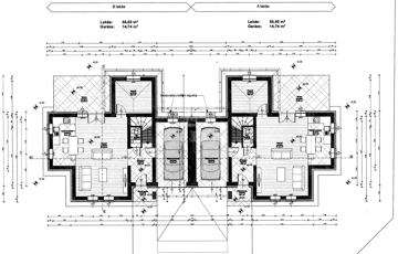
ÁRCSÖKKENÉSSEL MEGVÁSÁROLHATÓ INGATLAN! (168.000.000.- FT.) LEGYEN ÖN az ELSŐ, még TUD VÁLASZTANI a GARÁZZSAL ÉRINTKEZŐ, MOST ÉPÜLŐ "A" és "B" LAKÓHÁZAK közül! XXII. kerület Óhegy csendes kertvárosias környezetében, összesen 1000 m2-es telken 2 db, 130 m2-es 5 szobás, fürdőszobás nagy teraszos, garázzsal rendelkező "A" és "B" jelű házat kínálunk megvételre. Mindkét ház ALAPRAJZA, TELEK MÉRETE, KIVITELEZÉSE AZONOS ! A megvételre kínált: "A" és "B" jelű ingatlan KULCSRAKÉSZ ÁRA: 168 millió Ft Az ingatlanok saját 500 m2-es szeparált telek résszel, egyállásos garázzsal, térkövezett kocsibeállóval, külön mérőórákkal rendelkeznek. A két lakás két épület tömbben helyezkedik el. Az épületeket két garázs köti össze. Helyiségei: FÖLDSZINTEN: előszoba (5,7 m2), WC kézmosóval, nappali (31,25 m2), konyha-étkező (8,40 m2), vendégszoba (8 m2). EMELETEN közlekedő(9,3 m2), fürdőszoba(5 m2), 3 hálószoba (17,7 m2, 12,2 m2 és 8,5 m2 méretűek.) A MÉRETEKET, ELRENDEZÉST LÁSD AZ ALAPRAJZOKON ! MŰSZAKI TARTALOM: -Porotherm 30-as falazat,15 cm külső homlokzati szigetelés -25 cm tetőszigetelés,12 cm lábazat xps szigetelés -két szint között E gerendás vasbeton födém -Leier beton cserép,csatorna rendszerrel -3 rétegű üvegezéssel ellátott, műanyag nyílászárók -elektromos alumínium redőnyök, szúnyoghálóval -minden helyiségben padló fűtés, helyiségenként szabályozható osztógyűrűvel -Hőszivattyú 10 KWh -Vízmelegítő hibrid 100 L -Villamos energia :1x32 A, 1x25 A H tarifás villanyóra Átadás előtt, tereprendezésre kerül sor, építési törmelék elszállítása, talaj kiegyenlítés. TERVEZETT ÁTADÁS IDŐPONTJA : 2026. II. negyedév A HÁZAK ÖNÁLLÓ MÉRŐÓRÁKKAL, HASZNÁLATBAVÉTELI ENGEDÉLLYEL, TÁRSASHÁZ ALAPÍTÓ OKIRATTAL és H-TARIFÁS VILLANYÓRÁVAL kerülnek átadásra. A környék lokációja jó, közelben iskola, óvoda, orvosi rendelő, bevásárlási lehetőség található. Az ingatlan megtekintése előre egyeztetett időpontban lehetséges. VÁROM HÍVÁSÁT, TOVÁBBI KÉRDÉSEIVEL kapcsolatosan JELENTKEZÉSÉT! (G.I.)
https://csaladihazak.hu/elado/csaladi-haz/budapest-xxii-ker/168-millio-ft;130-negyzetmeter;5-szoba;geotermikus-futes/11587759