Az értékesítő:
Horváth Péter
+36 70 606 2990

Eladó családi ház Tápiószecső, 59 900 000 Ft, 92 négyzetméter

59 900 000 Ft
családi ház, 92 négyzetméter
Építőanyag:
Tégla
Egész szobák:
4
Komfort fokozat:
Összkomfort
Fűtés módja:
Hőszivattyú
Ingatlan állapota:
Kitűnő
Azonosító:
11587567
Értékesítés típusa:
eladó
Ingatlan típusa:
családi ház
Jelleg:
Ikerház
Település:
Tápiószecső
Alapterület:
92
Telekterület:
460
Ár:
59 900 000 Ft
Szintek száma:
Földszintes
Fűtés jellege:
Geotermikus
Kor:
Új építésű
Terasz:
Van
Pince:
Nincs
Telekterület típusa:
négyzetméter
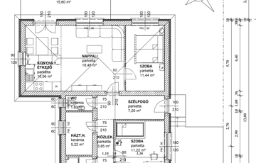
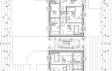
Tápiószecsőn, a Dobó István utca 23 szám alatt, Sülysáp határától mindössze 150 méterre, aszfaltos utcában, panorámás környezetben eladó új építésű, kulcsrakész ikerházfél. A 809 m²-es telken megvalósuló épületből az utcafronti ingatlan már elkelt. A hátsó ikerházfélhez 460 m²-es önálló telekrész tartozik. Az utca egyik oldalán kizárólag lakóházak találhatók, a másik oldalon szántóföld, mögötte erdő, amely gyönyörű, zavartalan panorámát biztosít. Az utca aszfaltozott, nyugodt, átmenő forgalomtól mentes környezet. Az ingatlan nettó 92,3 m² hasznos lakótérrel rendelkezik, megbízható kivitelezésben, kulcsrakész állapotban kerül átadásra. A fedett gépkocsibeálló az utcafronti ingatlanhoz tartozik. Az épület 30 cm-es nútféderes téglából, fa födémmel készül. A tető héjazata antracit színű betoncserép. A hőszigetelés a homlokzaton 15 cm EPS, a padlóban 10 cm lépésálló, a födémen 25 cm ásványgyapot. A külső nyílászárók 6 légkamrás, háromrétegű üvegezésű műanyag thermo ablakok. A fűtést hőszivattyús rendszer biztosítja, padlófűtéssel. Alap műszaki felszereltség -Csempe, járólap: 3.000 Ft/m² -Meleg burkolat: 3.000 Ft/m² -Fürdőkád: 40.000 Ft -Beltéri ajtók: 32.000 Ft/db -Csaptelepek: 15.000 Ft/db Magasabb árkategóriájú burkolatok és szaniterek felár ellenében választhatók, a különbözet finanszírozásával. A kivitelező Kókán, Sülysápon, Dányban számos ingatlant épített, melyeket már értékesítettünk. Komoly érdeklődés esetén szívesen megmutatjuk őket referenciaként. INGYENES hitel tanácsadás, CSOK Plusz - Otthon Start ügyintézés! BANKFÜGGETLEN hitelcentrumunk az összes elérhető bank és hitelintézet ajánlatát versenyezteti az Ön kedvéért, ráadásul DÍJMENTESEN. - Egyedi, bankfiókban nem elérhető kamat- és díjkedvezmények - Hitelképesség vizsgálat - Idő, energia és pénz megtakarítás - Teljes hivatali ügyintézés Amennyiben hirdetésem felkeltette az érdeklődését vagy egyéb információra van szüksége hívjon bizalommal!
https://csaladihazak.hu/elado/csaladi-haz/tapioszecso/60-millio-ft;92-negyzetmeter;4-szoba;geotermikus-futes/11587567