Az értékesítő:
Nagy Barbara
+36 70 490 7364

Eladó családi ház Gyöngyös, 86 900 000 Ft, 102 négyzetméter

86 900 000 Ft
családi ház, 102 négyzetméter
Építőanyag:
Tégla
Egész szobák:
4
Komfort fokozat:
Dupla komfort
Fűtés módja:
Gáz
Ingatlan állapota:
Épülő
Azonosító:
11586716
Értékesítés típusa:
eladó
Ingatlan típusa:
családi ház
Jelleg:
Sorház
Település:
Gyöngyös
Alapterület:
102
Telekterület:
310
Ár:
86 900 000 Ft
Szintek száma:
1 szint
Fűtés jellege:
Cirkó
Kor:
Új építésű
Terasz:
Nincs
Pince:
Nincs
Telekterület típusa:
négyzetméter
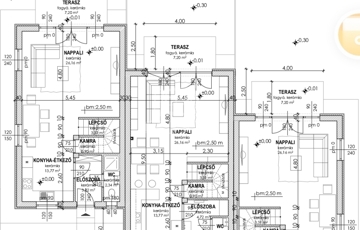
Eladásra kínálok Heves vármegyébe, Gyöngyösön, az M3 autópályától nem messze, 2 db újépítésű, panorámás, sorházi lakást. A sorház 3 lakásból fog állni. A két lakás, az épülő sorház két szélén fog elhelyezkedni. Felosztásuk: Földszinten, 50 nm nagyságú területen egy nagy méretű amerikai konyhás nappali, előszoba, kamra, mosdó. A földszintet egy terasz egészíti ki. Az emeleten 3 szoba, fürdőszoba, különálló mosdó, előszoba, valamint egy stílusos, és modern erkély. Szerkezete: •Falazat: Kiváló hőszigetelő képességű Porotherm Klíma tégla, kiegészítve 10 cm vastag hőszigeteléssel. •Nyílászárók: Háromrétegű üvegezésű, műanyag ablakok – maximális energia megtakarítás. Energetika: Az épület A+ osztályba tartozik. Fűtés/Hűtés: Kondenzációs gázkazán mellett a nappaliban felszerelt hűtő-fűtő klíma gondoskodik a kellemes hőmérsékletről. Csend és nyugalom: A lakások közös határánál dupla fal készül, ami tovább növeli a komfortérzetet és az önálló otthon biztonságát. Extrák: vakolható tokos redőnyszekrény, kerítés, térkő burkolat. Elhelyezkedés a telken előkertes, és panorámás. Mindegyik lakáshoz önálló használatú, kerítéssel körbezárt, gépjármű- és személyi bejárattal rendelkező kertrész tartozik ( az eladásra kínált szélső lakásokhoz 246 m² és 294 m² területtel ), ami tökéletes hely grillezéshez, baráti összejövetelekhez, családi pihenéshez és biztonságos gyermekjátékhoz. A lakások kulcsrakész állapotban kerülnek átadásra. Az építkezés már elkezdődött, de még van lehetőség arra, hogy a készültség függvényében az igényéhez igazítva apróbb módosítások megvalósíthatók legyenek és az enteriőrt teljesen a saját ízlésére szabja: a burkolatok, szaniterek és beltéri ajtók kiválaszthatók! A beruházó mérnöki iroda számos kifogástalan referenciamunkával igazolja szakmai hozzáértését, és megbízhatóságát (vevő kérésére).
https://csaladihazak.hu/elado/csaladi-haz/gyongyos/87-millio-ft;102-negyzetmeter;4-szoba;cirko-futes/11586716