Az értékesítő:
Kozák Csaba
+36 70 630 5040

Eladó családi ház Sajószentpéter, 25 900 000 Ft, 53 négyzetméter

25 900 000 Ft
családi ház, 53 négyzetméter
Egész szobák:
2
Komfort fokozat:
Összkomfort
Ingatlan állapota:
Átlagos
Azonosító:
11585884
Értékesítés típusa:
eladó
Ingatlan típusa:
családi ház
Jelleg:
Családi ház
Település:
Sajószentpéter
Alapterület:
53
Telekterület:
518
Ár:
25 900 000 Ft
Fűtés jellege:
Konvektoros
Telekterület típusa:
négyzetméter
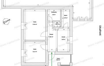
Eladó családi ház Sajószentpéteren – remek lehetőség saját otthonra vagy befektetésre!   Sajószentpéter Szabadság telepén kínálunk eladásra egy 53 m²-es, két szobás családi házat, amelyhez egy 518 m²-es telek tartozik – tökéletes választás, ha kertre, nyugalomra és saját élettérre vágyik. A sarki telken álló ingatlan felújítást igényel. A ház 1960-ban épült szilikátból, szerkezetileg stabil, így kiváló alapot nyújt egy modern, felújított otthon kialakításához. Az összkomfortos kialakítás biztosítja a mindennapi kényelmet, a keleti tájolás pedig világos, napfényes reggeleket garantál.   - Saját udvari parkolás - Utcai kilátás - Nyugodt, barátságos környék - Tágas telek, rengeteg lehetőséggel   A külső állapota átlagos, viszont a benne rejlő lehetőség hatalmas – alakítsa saját ízlésére!  
https://csaladihazak.hu/elado/csaladi-haz/sajoszentpeter/26-millio-ft;53-negyzetmeter;2-szoba;konvektoros-futes/11585884