Az értékesítő:
Eckert Eleonóra
+36 30 140 3328

Eladó családi ház Balatonalmádi, 170 000 000 Ft, 360 négyzetméter

170 000 000 Ft
családi ház, 360 négyzetméter
Egész szobák:
10
Ingatlan állapota:
Épülő
Azonosító:
11583580
Értékesítés típusa:
eladó
Ingatlan típusa:
családi ház
Jelleg:
Családi ház
Település:
Balatonalmádi
Alapterület:
360
Telekterület:
761
Ár:
170 000 000 Ft
Erkély:
Van
Telekterület típusa:
négyzetméter
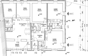
Eladó egy 761m2-es telken található befejezésre váró ingatlan Balatonalmádiban, mely egy régi épület bővítésével és emelet ráépítésével jött létre. Az ingatlan 360 négyzetméter mely 6 lakást foglal magába. Az alsó szinten a tervek szerint 4 lakás lett kialakítva, ahol a belső falak már állnak, így a vásárló könnyen befejezheti az építkezést. Az emeleten 2 nagyméretű tetőtéri lakás tervezett, ahol a szobák száma és méretei igény szerint még alakíthatók. Az egyik lakás balatoni panorámás kilátással rendelkezik, ami egyedülálló élményt nyújt az ott lakóknak. A ház cserép tetős, hőszigetelt, és új homlokzati nyílászárókkal rendelkezik, ami hő-és hangszigetelt, továbbá az energiahatékonyságot biztosítja. Az ingatlan kitűnő befektetési lehetőség is, hiszen a 6 lakás kiadásával jelentős bevételt lehet elérni. A Balaton és a központ 15 perc sétára elérhető. További kérdés és megtekintési szándék esetén szeretettel várom hívását! 06 30 140 3328 Dream-Ing Álomból Otthont
https://csaladihazak.hu/elado/csaladi-haz/balatonalmadi/170-millio-ft;360-negyzetmeter;12-szoba;nincs-megadva-futes/11583580